Dane techniczne
- Powierzchnia użytkowa 139.30 m²
- Powierzchnia zabudowy 111.00 m²
- Kubatura 840.50 m³
- Kąt nachylenia dachu 40.00°
- Wysokość budynku 7.72 m
- Min. wymiary działki 20.50x18.50 m
- Pracownia MOJ-DOM
Technologia budowy
Ściany:
Fundamenty: żelbetowe, wylewane
Ściany piwnic: trójwarstwowe z bloczków betonowych
Ściany zewnętrzne: trójwarstwowe, beton komórkowy lub pustaki ceramiczne
Stropy:
Strop: nad piwnicą - płyta żelbetowa, nad parterem - żelbetowy, prefabrykowany
Wykończenie:
Schody: żelbetowe
Dach
Pokrycie dachu: dachówka betonowa
Opis
Budynek jednorodzinny, parterowy, z poddaszem mieszkalnym, podpiwniczony, 5 pokoi, kuchnia z jadalnią
Rzuty
1. korytarz12.6 m2
2. kotłownia17.3 m2
3. pom. gosp.14.5 m2
4. pom. gosp.23.2 m2
5. pom. gosp.8.4 m2
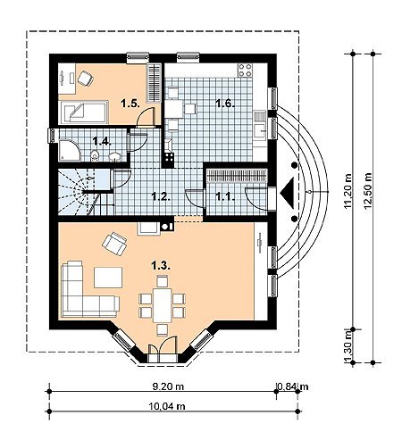
1. wiatrołap4.5 m2
2. hall10.7 m2
3. pokój dzienny35.9 m2
4. łazienka3.8 m2
5. sypialnia9.8 m2
6. kuchnia z jadalnią15.9 m2
1. hall13.7 m2
2. łazienka10.7 m2
3. sypialnia15.8 m2
4. sypialnia15.8 m2
5. sypialnia16.0 m2
Rzuty
1. korytarz12.6 m2
2. kotłownia17.3 m2
3. pom. gosp.14.5 m2
4. pom. gosp.23.2 m2
5. pom. gosp.8.4 m2
1. wiatrołap4.5 m2
2. hall10.7 m2
3. pokój dzienny35.9 m2
4. łazienka3.8 m2
5. sypialnia9.8 m2
6. kuchnia z jadalnią15.9 m2
1. hall13.7 m2
2. łazienka10.7 m2
3. sypialnia15.8 m2
4. sypialnia15.8 m2
5. sypialnia16.0 m2
Dbamy o swoich Klientów, jak nikt inny!
Do każdego projektu zakupionego za pośrednictwem serwisu kreoDOM.pl otrzymasz książeczkę z rabatami na zakupy w firmach Komfort, Fachowiec, Domino Łazienki, Komandor, Witek Home i innych. Książeczka na pewno okaże się przydatna podczas urządzania Twojego wymarzonego domu!
Książeczka z rabatami do takich firm jak: Komfort, Domino Łazienki, Fachowiec, Vox, Komandor, Witek Home i innych
Gwarancja
bezpiecznych zakupów
Dodatkowe pakiety projektowe