Dane techniczne
- Powierzchnia użytkowa 118.00 m²
- Powierzchnia zabudowy 88.60 m²
- Kubatura 671.40 m³
- Kąt nachylenia dachu 40.00°
- Wysokość budynku 7.36 m
- Min. wymiary działki 20.00x16.00 m
- Pracownia MOJ-DOM
Technologia budowy
Ściany:
Fundamenty: żelbetowe, wylewane
Ściany piwnic: betonowe wylewane lub z bloczków betonowych
Ściany zewnętrzne: jednowarstwowe beton komórkowy lub pustaki ceramiczne
Stropy:
nad piwnicą – płyta żelbetowa
nad parterem – żelbetowy, prefabrykowany
Wykończenie:
Schody: żelbetowe
Dach
Pokrycie dachu: dachówka betonowa.
Opis
Budynek jednorodzinny, parterowy, z poddaszem mieszkalnym, podpiwniczony, 4 pokoje, kuchnia
Rzuty
1. kotłownia14.6 m2
2. pom. gospodarcze18.2 m2
3. komunikacja4.1 m2
4. pom. gospodarcze19.0 m2
5. pom. gospodarcze5.4 m2
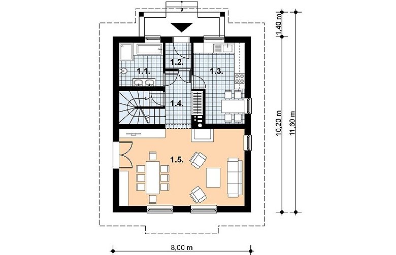
1. łazienka6.5 m2
2. wiatrołap2.3 m2
3. komunikacja5.0 m2
4. kuchnia12.8 m2
5. hall8.1 m2
6. pokój dzienny32.9 m2
1. łazienka6.9 m2
2. sypialnia16.6 m2
3. sypialnia16.7 m2
4. sypialnia11.9 m2
5. pom.gosp.2.8 m2
6. hall6.1 m2
Rzuty
1. kotłownia14.6 m2
2. pom. gospodarcze18.2 m2
3. komunikacja4.1 m2
4. pom. gospodarcze19.0 m2
5. pom. gospodarcze5.4 m2
1. łazienka6.5 m2
2. wiatrołap2.3 m2
3. komunikacja5.0 m2
4. kuchnia12.8 m2
5. hall8.1 m2
6. pokój dzienny32.9 m2
1. łazienka6.9 m2
2. sypialnia16.6 m2
3. sypialnia16.7 m2
4. sypialnia11.9 m2
5. pom.gosp.2.8 m2
6. hall6.1 m2
Dbamy o swoich Klientów, jak nikt inny!
Do każdego projektu zakupionego za pośrednictwem serwisu kreoDOM.pl otrzymasz książeczkę z rabatami na zakupy w firmach Komfort, Fachowiec, Domino Łazienki, Komandor, Witek Home i innych. Książeczka na pewno okaże się przydatna podczas urządzania Twojego wymarzonego domu!
Książeczka z rabatami do takich firm jak: Komfort, Domino Łazienki, Fachowiec, Vox, Komandor, Witek Home i innych
Gwarancja
bezpiecznych zakupów
Dodatkowe pakiety projektowe