Dane techniczne
- Powierzchnia użytkowa 102.90 m²
- Powierzchnia zabudowy 109.90 m²
- Kubatura 540.90 m³
- Kąt nachylenia dachu 40.00°
- Wysokość budynku 7.05 m
- Min. wymiary działki 23.00x16.50 m
- Garaż 16.80 m²
- Pracownia MOJ-DOM
Technologia budowy
Ściany:
Fundamenty: żelbetowe, wylewane
Ściany fundamentów: betonowe wylewane lub z bloczków betonowych
Ściany zewnętrzne: jednowarstwowe beton komórkowy lub pustaki ceramiczne
Stropy:
żelbetowy, prefabrykowany
Wykończenie:
Schody: żelbetowe
Dach
Pokrycie dachu: dachówka betonowa.
Opis
Budynek jednorodzinny, parterowy, z poddaszem mieszkalnym, niepodpiwniczony, 4 pokoje, kuchnia, garaż
Rzuty
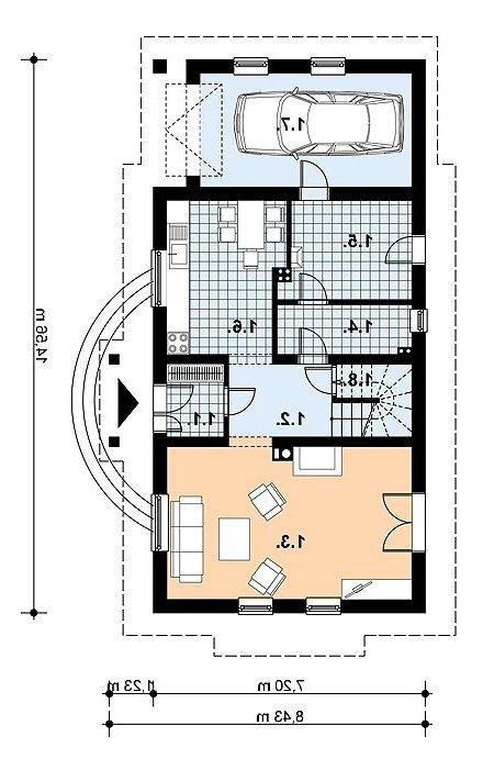
1. wiatrołap2.9 m2
2. hall7.1 m2
3. pokój dzienny25.9 m2
4. pom.gosp.4.7 m2
5. kotłownia8.2 m2
6. kuchnia z jadalnią12.0 m2
7. garaż16.8 m2
8. wc1.0 m2
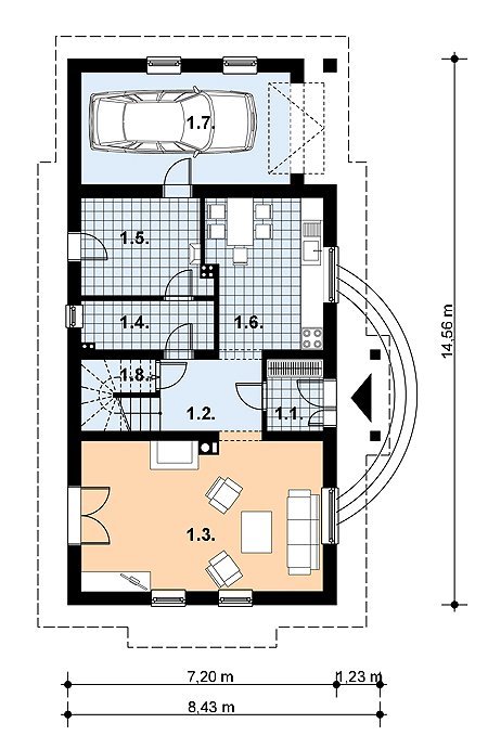
1. hall6.8 m2
2. łazienka8.7 m2
3. sypialnia12.6 m2
4. sypialnia12.7 m2
5. sypialnia12.8 m2
6. garderoba3.3 m2
Rzuty
1. wiatrołap2.9 m2
2. hall7.1 m2
3. pokój dzienny25.9 m2
4. pom.gosp.4.7 m2
5. kotłownia8.2 m2
6. kuchnia z jadalnią12.0 m2
7. garaż16.8 m2
8. wc1.0 m2
1. hall6.8 m2
2. łazienka8.7 m2
3. sypialnia12.6 m2
4. sypialnia12.7 m2
5. sypialnia12.8 m2
6. garderoba3.3 m2
Dbamy o swoich Klientów, jak nikt inny!
Do każdego projektu zakupionego za pośrednictwem serwisu kreoDOM.pl otrzymasz książeczkę z rabatami na zakupy w firmach Komfort, Fachowiec, Domino Łazienki, Komandor, Witek Home i innych. Książeczka na pewno okaże się przydatna podczas urządzania Twojego wymarzonego domu!
Książeczka z rabatami do takich firm jak: Komfort, Domino Łazienki, Fachowiec, Vox, Komandor, Witek Home i innych
Gwarancja
bezpiecznych zakupów
Dodatkowe pakiety projektowe