Dane techniczne
- Powierzchnia użytkowa 104.40 m²
- Powierzchnia zabudowy 105.20 m²
- Kubatura 476.70 m³
- Kąt nachylenia dachu 40.00°
- Wysokość budynku 6.49 m
- Min. wymiary działki 21.50x16.00 m
- Pracownia MOJ-DOM
Technologia budowy
Ściany:
Projekt dostępny również w technologii szkieletowej oraz bala drewnianego.
Fundamenty: żelbetowe, wylewane
Ściany zewnętrzne: murowane, jednowarstwowe, beton komórkowy lub ceramika
Ściany piwnic: betonowe wylewane lub z bloczków betnowych
Stropy:
żelbetowy nad piwnicą, belkowy, drewniany, otwarty nad parterem
Wykończenie:
Schody: żelbetowe i drewniane
Dach
Pokrycie dachu: dachówka betonowa
Opis
Budynek jednorodzinny, parterowy, z poddaszem mieszkalnym, podpiwniczony, 4 pokoje, kuchnia z jadalnią
Rzuty
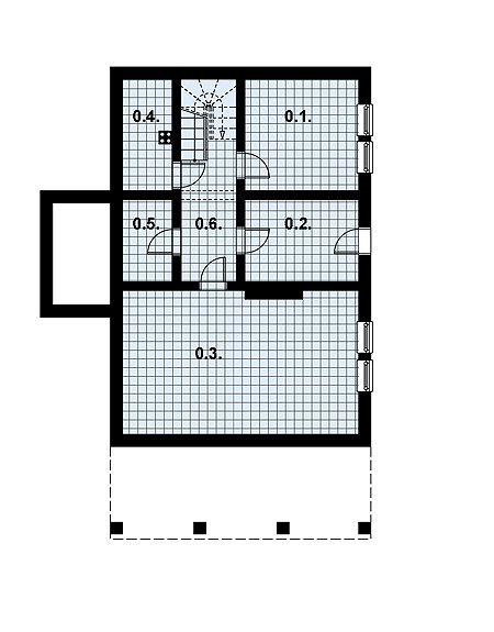
1. pom. gospodarcze10.2 m2
2. pom. gospodarcze7.1 m2
3. pom. gospodarcze27.0 m2
4. kotłownia4.3 m2
5. pom. gospodarcze3.1 m2
6. korytarz8.1 m2
1. wiatrołap3.4 m2
2. łazienka4.5 m2
3. klatka schodowa4.2 m2
4. kuchnia10.4 m2
5. jadalnia7.6 m2
6. hall6.1 m2
7. pokój dzienny26.8 m2
1. hall6.9 m2
2. sypialnia10.9 m2
3. garderoba4.7 m2
4. sypialnia7.6 m2
5. łazienka4.7 m2
6. sypialnia27.4 m2
Rzuty
1. pom. gospodarcze10.2 m2
2. pom. gospodarcze7.1 m2
3. pom. gospodarcze27.0 m2
4. kotłownia4.3 m2
5. pom. gospodarcze3.1 m2
6. korytarz8.1 m2
1. wiatrołap3.4 m2
2. łazienka4.5 m2
3. klatka schodowa4.2 m2
4. kuchnia10.4 m2
5. jadalnia7.6 m2
6. hall6.1 m2
7. pokój dzienny26.8 m2
1. hall6.9 m2
2. sypialnia10.9 m2
3. garderoba4.7 m2
4. sypialnia7.6 m2
5. łazienka4.7 m2
6. sypialnia27.4 m2
Dbamy o swoich Klientów, jak nikt inny!
Do każdego projektu zakupionego za pośrednictwem serwisu kreoDOM.pl otrzymasz książeczkę z rabatami na zakupy w firmach Komfort, Fachowiec, Domino Łazienki, Komandor, Witek Home i innych. Książeczka na pewno okaże się przydatna podczas urządzania Twojego wymarzonego domu!
Książeczka z rabatami do takich firm jak: Komfort, Domino Łazienki, Fachowiec, Vox, Komandor, Witek Home i innych
Gwarancja
bezpiecznych zakupów
Dodatkowe pakiety projektowe