Dane techniczne
- Powierzchnia użytkowa 106.80 m²
- Powierzchnia zabudowy 76.50 m²
- Kubatura 538.10 m³
- Kąt nachylenia dachu 40.00°
- Wysokość budynku 6.46 m
- Min. wymiary działki 19.00x15.50 m
- Pracownia MOJ-DOM
Technologia budowy
Ściany:
Projekt dostępny również w technologii bala drewnianego.
Fundamenty: żelbetowe, wylewane
Ściany zewnętrzne: szkieletowe ocieplone wełną mineralną
Ściany piwnic: betonowe wylewane lub z bloczków betonowych
Stropy:
żelbetowy nad piwnicą, belkowy, drewniany, otwarty nad parterem
Wykończenie:
Schody: drewniane
Dach
Pokrycie dachu: gont bitumiczny
Opis
Budynek jednorodzinny, parterowy, z poddaszem mieszkalnym, podpiwniczony, 4 pokoje, kuchnia z jadalnią
Rzuty
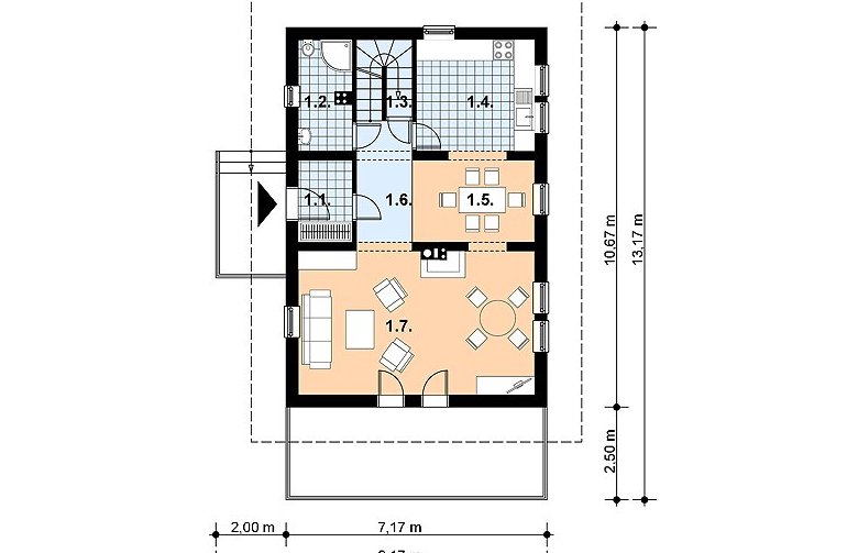
1. wiatrołap3.6 m2
2. łazienka4.7 m2
3. klatka schodowa4.3 m2
4. kuchnia11.1 m2
5. jadalnia8.1 m2
6. komunikacja6.2 m2
7. pokój dzienny28.3 m2
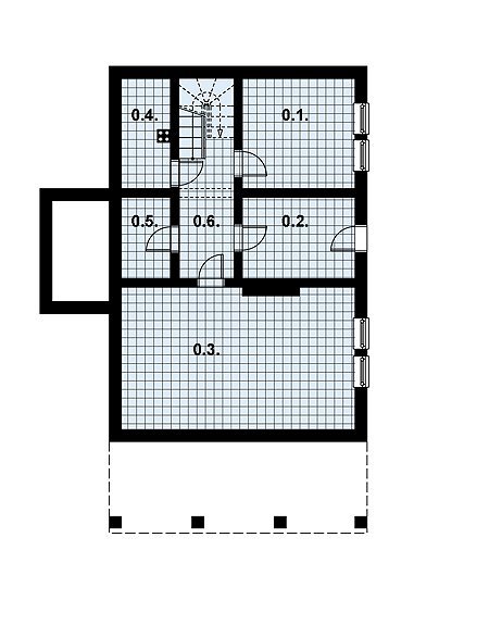
1. pom. gospodarcze9.8 m2
2. pom. gospodarcze6.9 m2
3. pom. gospodarcze26.3 m2
4. kotłownia4.0 m2
5. pom. gospodarcze3.0 m2
6. korytarz8.2 m2
1. hall7.0 m2
2. sypialnia11.3 m2
3. pom. gospodarcze4.9 m2
4. sypialnia7.9 m2
5. łazienka5.0 m2
6. sypialnia28.3 m2
Rzuty
1. wiatrołap3.6 m2
2. łazienka4.7 m2
3. klatka schodowa4.3 m2
4. kuchnia11.1 m2
5. jadalnia8.1 m2
6. komunikacja6.2 m2
7. pokój dzienny28.3 m2
1. pom. gospodarcze9.8 m2
2. pom. gospodarcze6.9 m2
3. pom. gospodarcze26.3 m2
4. kotłownia4.0 m2
5. pom. gospodarcze3.0 m2
6. korytarz8.2 m2
1. hall7.0 m2
2. sypialnia11.3 m2
3. pom. gospodarcze4.9 m2
4. sypialnia7.9 m2
5. łazienka5.0 m2
6. sypialnia28.3 m2
Dbamy o swoich Klientów, jak nikt inny!
Do każdego projektu zakupionego za pośrednictwem serwisu kreoDOM.pl otrzymasz książeczkę z rabatami na zakupy w firmach Komfort, Fachowiec, Domino Łazienki, Komandor, Witek Home i innych. Książeczka na pewno okaże się przydatna podczas urządzania Twojego wymarzonego domu!
Książeczka z rabatami do takich firm jak: Komfort, Domino Łazienki, Fachowiec, Vox, Komandor, Witek Home i innych
Gwarancja
bezpiecznych zakupów
Dodatkowe pakiety projektowe