Dane techniczne
- Powierzchnia użytkowa 198.81 m²
- Powierzchnia zabudowy 185.00 m²
- Kubatura 677.00 m³
- Kąt nachylenia dachu 42.00°
- Powierzchnia dachu 296.00 m²
- Wysokość budynku 9.34 m
- Min. wymiary działki 24.42x20.65 m
- Garaż 22.28 m²
- Pracownia LK & Projekt
Technologia budowy
- Ławy fundamentowe: żelbetowe
- Ściany fundamentowe: betonowe
- Ściany zewnętrzne: z pustaków ceramicznych 'Porotherm' firmy 'Wienerberger' o gr.44 cm
- Ściany wewnętrzne: z pustaków ceramicznych Porotherm gr. 44, 25, 11.5 firmy Wienerberger
- Strop: żelbetowy
- Konstrukcja dachu: drewniana docieplona wełną mineralną gr. 17 cm
- Pokrycie dachu: dachówką ceramiczną
- Elewacje: wykończone tynkiem akrylowym, cokoły obłożone płytkami klinkierowymi
- Okna i drzwi balkonowe: drewniane
- Sposób ogrzewania: kocioł na gaz
- Wentylacja: grawitacyjna
- Koszt orientacyjny (bez Vat): 486 252.00 zł.
Opis
Dom jednorodzinny, parterowy, z poddaszem użytkowym i jednostanowiskowym garażem .
Rzuty
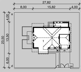
PARTER
Parter
1. Sień 5.44m
2. Hall 16.02m
3. Łazienka 3.75m
4. Kotłownia 2.98m
5. Schowek 1.95m
6. Kuchnia 9.76m
7. Jadalnia 10.09m
8. Pokój dzienny 37.71m
9. Sypialnia 2 10.76m
10. Pomieszczenie gospodarcze 10.30m
11. Garaż 22.28m
PODDASZE
Poddasze
1. Hall (23.64) 23.64m
2. Łazienka (7.51) 7.51m
3. Łazienka z sauną (4.48) 7.48m
4. Sypialnia (18.58) 16.34m
5. Sypialnia 2 (16.34) 16.34m
6. Sypialnia 3 (14.52) 14.52m
7. Sypialnia 4 (14.52) 14.52m
Rzuty
PARTER
Parter
1. Sień 5.44m
2. Hall 16.02m
3. Łazienka 3.75m
4. Kotłownia 2.98m
5. Schowek 1.95m
6. Kuchnia 9.76m
7. Jadalnia 10.09m
8. Pokój dzienny 37.71m
9. Sypialnia 2 10.76m
10. Pomieszczenie gospodarcze 10.30m
11. Garaż 22.28m
PODDASZE
Poddasze
1. Hall (23.64) 23.64m
2. Łazienka (7.51) 7.51m
3. Łazienka z sauną (4.48) 7.48m
4. Sypialnia (18.58) 16.34m
5. Sypialnia 2 (16.34) 16.34m
6. Sypialnia 3 (14.52) 14.52m
7. Sypialnia 4 (14.52) 14.52m
Dbamy o swoich Klientów, jak nikt inny!
Do każdego projektu zakupionego za pośrednictwem serwisu kreoDOM.pl otrzymasz książeczkę z rabatami na zakupy w firmach Komfort, Fachowiec, Domino Łazienki, Komandor, Witek Home i innych. Książeczka na pewno okaże się przydatna podczas urządzania Twojego wymarzonego domu!
Książeczka z rabatami do takich firm jak: Komfort, Domino Łazienki, Fachowiec, Vox, Komandor, Witek Home i innych
Gwarancja
bezpiecznych zakupów
Dodatkowe pakiety projektowe
- Kosztorys inwestorski cena ustalana indywidualnie
- Kolektory słoneczne cena ustalana indywidualnie
- Kominek z DGP cena ustalana indywidualnie
- Wentylacja mechaniczna z rekuperacją cena ustalana indywidualnie
- Pompa ciepła cena ustalana indywidualnie