Dane techniczne
- Powierzchnia użytkowa 189.48 m²
- Powierzchnia zabudowy 150.51 m²
- Kubatura 637.98 m³
- Kąt nachylenia dachu 40.00°
- Powierzchnia dachu 257.92 m²
- Wysokość budynku 8.66 m
- Min. wymiary działki 22.90x19.00 m
- Garaż 21.17 m²
- Pracownia Archipelag
Technologia budowy
Dom zaprojektowano w technologii murowej ze stropem drewnianym. Schody wewnętrzne drewniane. Dach o konstrukcji drewnianej kryty dachówką cementową. Elewacje wykonano z tynku mineralnego. Stolarka okienna drewniana.
Opis
Dom parterowy z poddaszem użytkowym, niepodpiwniczony, z garażem, przeznaczony dla 4-osobowej rodziny. Prosta bryła budynku o dwuspadowym dachu została podkreślona przeszkloną ścianą szczytową. Na parterze znajduje się przestronna strefa dzienna z salonem, kuchnią i jadalnią. Strefa wejściowa to wiatrołap, garderoba oraz toaleta. Strefa nocna znajduje się na poddaszu i składa się z wygodnej sypialni z wyjściem na balkon oraz pokoju dziecięcego z pracownią usytuowaną nad częścią garażową. Łazienka dostępna jest z korytarza.
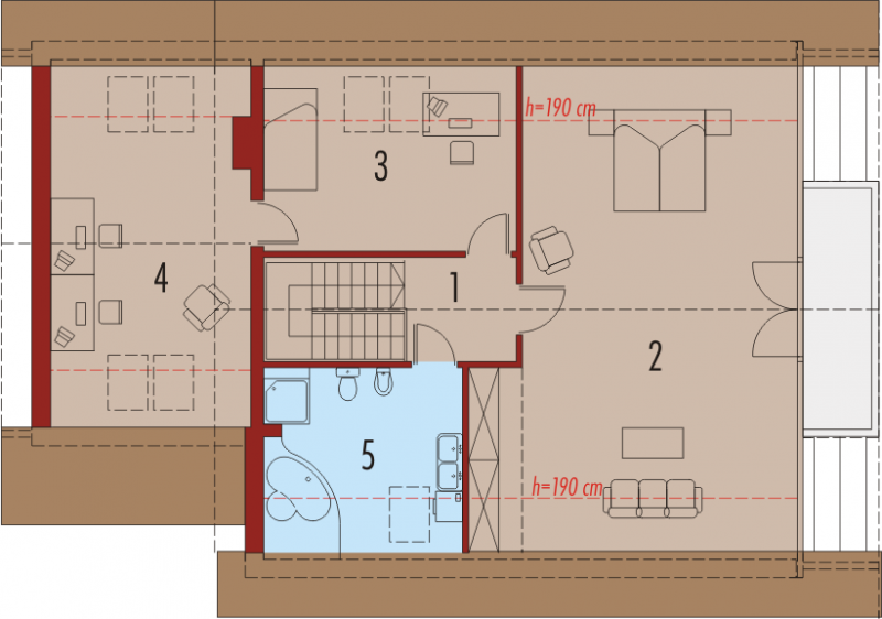
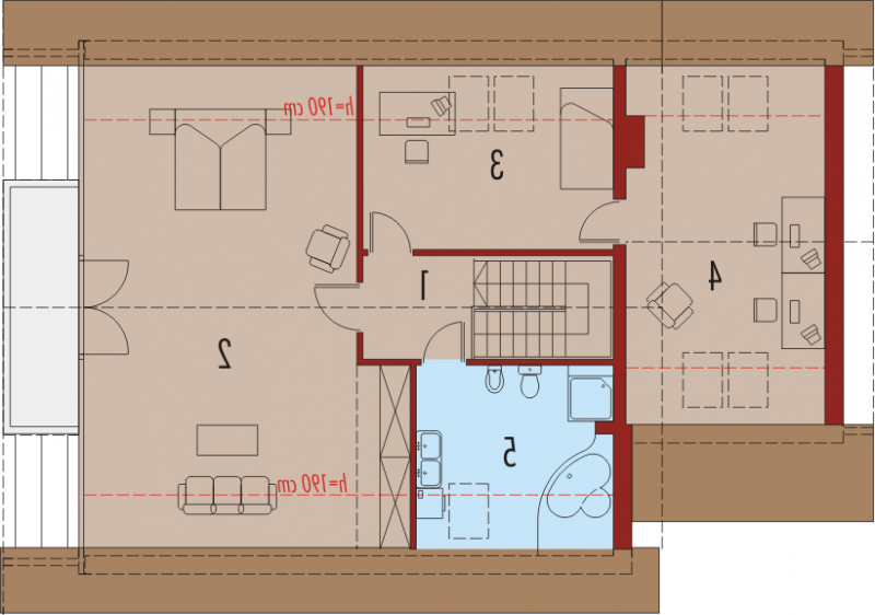
Rzuty
PARTER
- Wiatrołap 5.72 m2
- Hol 13.94 m2
- Kuchnia 17.97 m2
- Pokój dzienny jadalnia 51.52 m2
- Toaleta 2.54 m2
- Garderoba 4.95 m2
- Pom. gospodarcze 6.08 m2
- Garaż 21.17 m2
PODDASZE
- Korytarz 4.45 m2
- Sypialnia 40.79 m2
- Pokój 12.65 m2
- Pokój 18.97 m2
- Łazienka 9.80 m2
Rzuty
PARTER
- Wiatrołap 5.72 m2
- Hol 13.94 m2
- Kuchnia 17.97 m2
- Pokój dzienny jadalnia 51.52 m2
- Toaleta 2.54 m2
- Garderoba 4.95 m2
- Pom. gospodarcze 6.08 m2
- Garaż 21.17 m2
PODDASZE
- Korytarz 4.45 m2
- Sypialnia 40.79 m2
- Pokój 12.65 m2
- Pokój 18.97 m2
- Łazienka 9.80 m2
Dbamy o swoich Klientów, jak nikt inny!
Do każdego projektu zakupionego za pośrednictwem serwisu kreoDOM.pl otrzymasz książeczkę z rabatami na zakupy w firmach Komfort, Fachowiec, Domino Łazienki, Komandor, Witek Home i innych. Książeczka na pewno okaże się przydatna podczas urządzania Twojego wymarzonego domu!
Książeczka z rabatami do takich firm jak: Komfort, Domino Łazienki, Fachowiec, Vox, Komandor, Witek Home i innych
Gwarancja
bezpiecznych zakupów
Dodatkowe pakiety projektowe
- Kosztorys inwestorski cena ustalana indywidualnie
- Wentylacja mechaniczna z rekuperacją 700,00 zł
- Wentylacja mechaniczna + GPWC 700,00 zł
- Kolektory Słoneczne 400,00 zł
- Panele Fotowoltaiczne 400,00 zł
- Pompa Ciepła 500,00 zł
- Kominek z DGP 400,00 zł
- Biologiczna oczyszczalnia ścieków 150,00 zł
- Centralny Odkurzacz 300,00 zł
- Szambo przydomowe 200,00 zł
- Dodatkowy egzemplarz projektu 150,00 zł