Dane techniczne
- Powierzchnia użytkowa 144.90 m²
- Powierzchnia zabudowy 114.25 m²
- Kubatura 630.00 m³
- Kąt nachylenia dachu 45.00°
- Powierzchnia dachu 190.00 m²
- Wysokość budynku 9.00 m
- Min. wymiary działki 15.50x29.11 m
- Garaż 43.14 m²
- Pracownia LK & Projekt
Technologia budowy
- Ławy fundamentowe: żelbetowe
- Ściany fundamentowe: betonowe o gr. 30 cm
- Ściany zewnętrzne: z pustaków ceramicznych typu 'Porotherm' o gr.30 cm firmy 'Wienerberger' oraz styropian gr.15 cm
- Ściany wewnętrzne: z pustaków 'Porotherm' gr. 25 i 11.5 cm
- Strop: żelbetowy
- Konstrukcja dachu: drewniana, ocieplona wełną mineralną gr. 24 cm firmy 'Rockwool'
- Pokrycie dachu: dachówką ceramiczną 'Koramic' firmy 'Wienerberger'
- Elewacje: wykończone tynkiem silikonowym, cokół obłożony płytkami kamiennymi
- Okna i drzwi balkonowe: drewniane
- Sposób ogrzewania: kocioł na gaz
- Wentylacja: grawitacyjna
- Koszt orientacyjny (bez Vat): 460 560.00 zł.
Opis
Dom jednorodzinny, parterowy, z poddaszem użytkowym, podpiwniczony, z dwustanowiskowym garażem.
Rzuty
PIWNICA
Piwnica
1. Hall 3.27m
2. Kotłownia z pralnią 13.5m
3. Pomieszczenie gospodarcze 19.3m
4. Pomieszczenie gospodarcze 2 15.31m
5. Garaż 43.14m
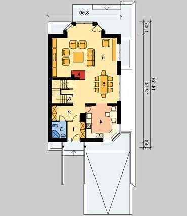
PARTER
Parter
1. Sień 3.95m
2. Hall 6.46m
3. Łazienka 3.2m
4. Kuchnia 13.1m
5. Jadalnia 14.06m
6. Pokój dzienny 39.81m
PODDASZE
Poddasze
1. Hall (5.46) 5.46m
2. WC (2.55) 1.68m
3. Łazienka (9.81) 7.69m
4. Sypialnia (21.09) 17.86m
5. Sypialnia 2 (21.11) 17.87m
6. Sypialnia 3 (17.47) 13.76m
Rzuty
PIWNICA
Piwnica
1. Hall 3.27m
2. Kotłownia z pralnią 13.5m
3. Pomieszczenie gospodarcze 19.3m
4. Pomieszczenie gospodarcze 2 15.31m
5. Garaż 43.14m
PARTER
Parter
1. Sień 3.95m
2. Hall 6.46m
3. Łazienka 3.2m
4. Kuchnia 13.1m
5. Jadalnia 14.06m
6. Pokój dzienny 39.81m
PODDASZE
Poddasze
1. Hall (5.46) 5.46m
2. WC (2.55) 1.68m
3. Łazienka (9.81) 7.69m
4. Sypialnia (21.09) 17.86m
5. Sypialnia 2 (21.11) 17.87m
6. Sypialnia 3 (17.47) 13.76m
Dbamy o swoich Klientów, jak nikt inny!
Do każdego projektu zakupionego za pośrednictwem serwisu kreoDOM.pl otrzymasz książeczkę z rabatami na zakupy w firmach Komfort, Fachowiec, Domino Łazienki, Komandor, Witek Home i innych. Książeczka na pewno okaże się przydatna podczas urządzania Twojego wymarzonego domu!
Książeczka z rabatami do takich firm jak: Komfort, Domino Łazienki, Fachowiec, Vox, Komandor, Witek Home i innych
Gwarancja
bezpiecznych zakupów
Dodatkowe pakiety projektowe
- Kosztorys inwestorski cena ustalana indywidualnie
- Kolektory słoneczne cena ustalana indywidualnie
- Kominek z DGP cena ustalana indywidualnie
- Wentylacja mechaniczna z rekuperacją cena ustalana indywidualnie
- Pompa ciepła cena ustalana indywidualnie