Dane techniczne
- Powierzchnia użytkowa 201.11 m²
- Powierzchnia zabudowy 156.50 m²
- Kubatura 852.57 m³
- Kąt nachylenia dachu 45.00°
- Wysokość budynku 9.60 m
- Min. wymiary działki 30.60x24.50 m
- Garaż 48.30 m²
- Pracownia LK & Projekt
Technologia budowy
Wentylacja grawitacyjna; Okna i drzwi balkonowe aluminiowe; Ściany wewnętrzne z pustaków ceramicznych Heluz gr. 25, 11.5; Ściany fundamentowe żelbetowe o gr. 38 cm; Ławy fundamentowe żelbetowe; Ściany zewnętrzne z pustaków ceramicznych Heluz 50; Sposób ogrzewania kocioł na gaz; Strop żelbetowy, wylewany; Konstrukcja dachu drewniana, w części drewno klejone; Pokrycie dachu dachówką ceramiczną Koramic Actua firmy Wienerberger; Elewacje wykończone tynkiem silikonowym oraz kamieniem naturalnym;
Koszt orientacyjny (bez Vat) : 502 892.00 zł
Opis
Dom parterowy, z poddaszem użytkowym oraz dwustanowiskowym garażem.
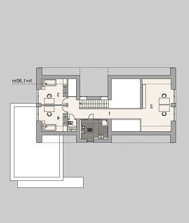
Rzuty
PARTER
Parter
1. Sień 5.96m
2. Hall 16.60m
3. Jadalnia 15.28m
4. Garderoba 6.20m
5. Łazienka 6.17m
6. Sypialnia 17.74m
7. Pokój dzienny 17.83m
8. Kuchnia 14.74m
9. WC 3.81m
10. Spiżarka 7.81m
11. Kotłownia z pralnią 12.39m
12. Garaż 48.30m
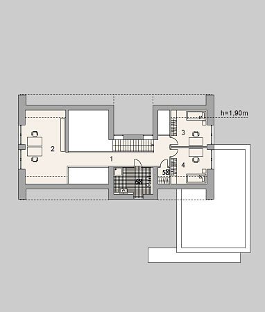
PODDASZE
Poddasze
1. Hall (17.18) 17.18m
2. Pracownia (31.42) 25.37m
3. Sypialnia (13.63) 11.05m
4. Sypialnia 2 (13.61) 10.90m
5. Schowek (2.02) 1.14m
6. Łazienka (10.94) 10.94m
Rzuty
PARTER
Parter
1. Sień 5.96m
2. Hall 16.60m
3. Jadalnia 15.28m
4. Garderoba 6.20m
5. Łazienka 6.17m
6. Sypialnia 17.74m
7. Pokój dzienny 17.83m
8. Kuchnia 14.74m
9. WC 3.81m
10. Spiżarka 7.81m
11. Kotłownia z pralnią 12.39m
12. Garaż 48.30m
PODDASZE
Poddasze
1. Hall (17.18) 17.18m
2. Pracownia (31.42) 25.37m
3. Sypialnia (13.63) 11.05m
4. Sypialnia 2 (13.61) 10.90m
5. Schowek (2.02) 1.14m
6. Łazienka (10.94) 10.94m
Dbamy o swoich Klientów, jak nikt inny!
Do każdego projektu zakupionego za pośrednictwem serwisu kreoDOM.pl otrzymasz książeczkę z rabatami na zakupy w firmach Komfort, Fachowiec, Domino Łazienki, Komandor, Witek Home i innych. Książeczka na pewno okaże się przydatna podczas urządzania Twojego wymarzonego domu!
Książeczka z rabatami do takich firm jak: Komfort, Domino Łazienki, Fachowiec, Vox, Komandor, Witek Home i innych
Gwarancja
bezpiecznych zakupów
Dodatkowe pakiety projektowe
- Kosztorys inwestorski cena ustalana indywidualnie
- Kolektory słoneczne cena ustalana indywidualnie
- Kominek z DGP cena ustalana indywidualnie
- Wentylacja mechaniczna z rekuperacją cena ustalana indywidualnie
- Pompa ciepła cena ustalana indywidualnie