Dane techniczne
- Powierzchnia użytkowa 210.94 m²
- Powierzchnia zabudowy 238.70 m²
- Kubatura 1142.58 m³
- Kąt nachylenia dachu 45.00°
- Powierzchnia dachu 481.41 m²
- Wysokość budynku 9.85 m
- Min. wymiary działki 29.80x24.65 m
- Garaż 41.40 m²
- Pracownia LK & Projekt
Technologia budowy
- Elewacje: tynk sylikonowy, kolor: biały/kremowy, kamień naturalny, drewno naturalne, kolor: złoty dąb
- Okna i drzwi balkonowe: trzyszybowe, PCV, kolor: orzechowy
- Sposób ogrzewania: pompa ciepła, ogrzewanie podłogowe
- Strop: żelbetowy, monolityczny
- Konstrukcja dachu: drewniana, ocieplona wełną mineralną o gr. 30 cm Rockwool
- Pokrycie dachu: dachówka ceramiczną
- Wentylacja: grawitacyjna
- Ściany wewnętrzne: z bloczków Silka E o gr. 24 cm i 12 cm firmy Xella
- Ściany zewnętrzne: z bloczków z betonu komórkowego YTONG Energo o gr. 30 cm firmy Xella
- Ławy fundamentowe: żelbetowe
Opis
Jednorodzinny budynek mieszkalny, parterowy z użytkowym poddaszem.
Rzuty
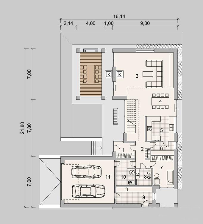
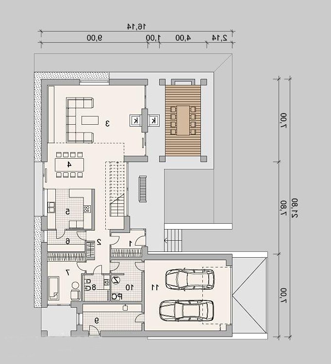
PARTER
- Powierzchnia użytkowa 117,89 m2
- Sień 5,33 m2
- Hall 18,32 m2
- Pokój dzienny 42,62 m2
- Jadalnia 15,62 m2
- Kuchnia 12,78 m2
- Spiżarka 5,71 m2
- Pokój gościnny 12,38 m2
- Łazienka 5,13 m2
- Pomieszczenie gospodarcze 11,30 m2
- Pomieszczenie techniczne 8,92 m2
- Garaż 41,40 m2
PODDASZE
- Hall (23,63) 25,58 m2
- Pokój (18,59) 11,76 m2
- Pokój 2(18,56) 11,73 m2
- Pralnia (6,72) 6,50 m2
- Łazienka (16,64) 12,20 m2
- Garderoba (6,77) 4,28 m2
- Pokój 3 (31,83) 29,81 m2
- Garderoba 2 (7,60) 4,80 m2
Rzuty
PARTER
- Powierzchnia użytkowa 117,89 m2
- Sień 5,33 m2
- Hall 18,32 m2
- Pokój dzienny 42,62 m2
- Jadalnia 15,62 m2
- Kuchnia 12,78 m2
- Spiżarka 5,71 m2
- Pokój gościnny 12,38 m2
- Łazienka 5,13 m2
- Pomieszczenie gospodarcze 11,30 m2
- Pomieszczenie techniczne 8,92 m2
- Garaż 41,40 m2
PODDASZE
- Hall (23,63) 25,58 m2
- Pokój (18,59) 11,76 m2
- Pokój 2(18,56) 11,73 m2
- Pralnia (6,72) 6,50 m2
- Łazienka (16,64) 12,20 m2
- Garderoba (6,77) 4,28 m2
- Pokój 3 (31,83) 29,81 m2
- Garderoba 2 (7,60) 4,80 m2
Dbamy o swoich Klientów, jak nikt inny!
Do każdego projektu zakupionego za pośrednictwem serwisu kreoDOM.pl otrzymasz książeczkę z rabatami na zakupy w firmach Komfort, Fachowiec, Domino Łazienki, Komandor, Witek Home i innych. Książeczka na pewno okaże się przydatna podczas urządzania Twojego wymarzonego domu!
Książeczka z rabatami do takich firm jak: Komfort, Domino Łazienki, Fachowiec, Vox, Komandor, Witek Home i innych
Gwarancja
bezpiecznych zakupów
Dodatkowe pakiety projektowe
- Kosztorys inwestorski cena ustalana indywidualnie
- Kolektory słoneczne cena ustalana indywidualnie
- Kominek z DGP cena ustalana indywidualnie
- Wentylacja mechaniczna z rekuperacją cena ustalana indywidualnie
- Pompa ciepła cena ustalana indywidualnie