Dane techniczne
- Powierzchnia użytkowa 160.64 m²
- Powierzchnia zabudowy 125.31 m²
- Kubatura 678.69 m³
- Kąt nachylenia dachu 45.00°
- Powierzchnia dachu 233.00 m²
- Wysokość budynku 9.95 m
- Min. wymiary działki 20.20x22.25 m
- Garaż 33.30 m²
- Pracownia LK & Projekt
Technologia budowy
- Okna i drzwi balkonowe: PVC firmy Oknoplast
- Sposób ogrzewania: kocioł na gaz, wspomaganie cwu kolektorami słonecznymi firmy Fakro
- Elewacje: wykończone tynkiem silikonowym, cokoły wykończone kamieniem naturalnym ciętym
- Pokrycie dachu: dachówką ceramiczną Koramic firmy Wienerberger
- Strop: żelbetowy
- Konstrukcja dachu: drewniana, krokwiowa, docieplona wełną mineralną o łącznej gr. 30 cm firmy Rockwool
- Ściany wewnętrzne: z pustaków ceramicznych Heluz Family o gr.25 cm, 11,5 cm
- Ławy fundamentowe: żelbetowe
- Ściany fundamentowe: z bloczków betonowych o gr. 38 cm, ocieplonych styropianem Gold fundament firmy Termo Organika o gr. 12 cm
- Ściany zewnętrzne: z pustaków ceramicznych Heluz Family o gr. 50 cm
- Wentylacja: mechaniczna z rekuperacją
- Stan na kwartał: II 2012 zł.
- Koszt budowy ogółem (bez VAT): 565 272,82 zł.
- Instalacje: 112 730,00 zł.
- Roboty budowlane stanu wykończeniowego: 151 476,58 zł.
- Stolarka: 44 421,78 zł.
- Stan surowy zadaszony: 174 794,91 zł.
- Roboty budowlane stanu zerowego: 81 849,55 zł.
Opis
Budynek jednorodzinny, parterowy, z piwnicą i poddaszem mieszkalnym.
Rzuty
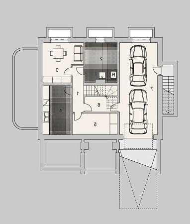
PIWNICA
Piwnica
1. Hall 4.98m
2. Kotłownia 12.22m
3. Pokój rekreacyjny 13.40m
4. Pralnia 13.13m
5. Pomieszczenie techniczne 9.26m
6. Komunikacja 4.67m
7. Garaż 33.30m
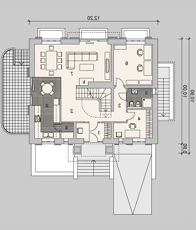
PARTER
Parter
1. Sień 4.95m
2. Hall 10.88m
3. Komunikacja
3.82m
4. Gabinet 8.58m
5. Łazienka 4.57m
6. Pokój biurowy 14.62m
7. Pokój dzienny z jadalnią 27.86m
8. Kuchnia 12.12m
9. Spiżarka 1.78m
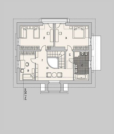
PODDASZE
Poddasze
1. Hall (15.18) 12.57m
2. Komunikacja (5.76) 5.09m
3. Łazienka (11.45) 8.50m
4. Sypialnia (21.63) 18.23m
5. Sypialnia 2 (21.63) 18.23m
6. Pokój gościnny (11.83) 8.84m
Rzuty
PIWNICA
Piwnica
1. Hall 4.98m
2. Kotłownia 12.22m
3. Pokój rekreacyjny 13.40m
4. Pralnia 13.13m
5. Pomieszczenie techniczne 9.26m
6. Komunikacja 4.67m
7. Garaż 33.30m
PARTER
Parter
1. Sień 4.95m
2. Hall 10.88m
3. Komunikacja
3.82m
4. Gabinet 8.58m
5. Łazienka 4.57m
6. Pokój biurowy 14.62m
7. Pokój dzienny z jadalnią 27.86m
8. Kuchnia 12.12m
9. Spiżarka 1.78m
PODDASZE
Poddasze
1. Hall (15.18) 12.57m
2. Komunikacja (5.76) 5.09m
3. Łazienka (11.45) 8.50m
4. Sypialnia (21.63) 18.23m
5. Sypialnia 2 (21.63) 18.23m
6. Pokój gościnny (11.83) 8.84m
Dbamy o swoich Klientów, jak nikt inny!
Do każdego projektu zakupionego za pośrednictwem serwisu kreoDOM.pl otrzymasz książeczkę z rabatami na zakupy w firmach Komfort, Fachowiec, Domino Łazienki, Komandor, Witek Home i innych. Książeczka na pewno okaże się przydatna podczas urządzania Twojego wymarzonego domu!
Książeczka z rabatami do takich firm jak: Komfort, Domino Łazienki, Fachowiec, Vox, Komandor, Witek Home i innych
Gwarancja
bezpiecznych zakupów
Dodatkowe pakiety projektowe
- Kosztorys inwestorski cena ustalana indywidualnie
- Kolektory słoneczne cena ustalana indywidualnie
- Kominek z DGP cena ustalana indywidualnie
- Wentylacja mechaniczna z rekuperacją cena ustalana indywidualnie
- Pompa ciepła cena ustalana indywidualnie