Ściany zewnętrzne 2-warstwowe : Beton komórkowy ( 24cm) / Pustak ceramiczny (25cm) + styropian 20cm Uściany < 0,20 W/(m2*K) – warunek spełniony.
Ławy fundamentowe tradycyjne. Ściany fundamentowe betonowe gr.24(25cm) z bloczków betonowych lub wylewane.
Stropy - płyta żelbetowa . Zamiennie można zastosować strop gęstożeberkowy typu TERIVA .
Konstrukcja dachu - tradycyjna drewniana , pokrycie dachu z dachówki ceramicznej.
Elewacje - pokryte tynkiem strukturalnym cienkowarstwowym.
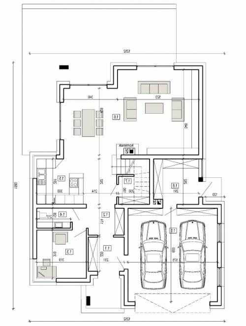
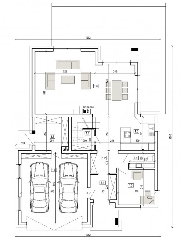
Dom przeznaczony na dość wąską działkę. Wnętrze parteru ma układ otwarty, tworzą go kuchnia z wyspą, jadalnia oraz salon. Kominek znajdujący się w centralnym punkcie domu, można wykonać w nowoczesnym stylu.powierzchnia parteru jest dobrze doświetlona dzięki szerokim przeszkleniom. Na piętro domu prowadzą 3-biegowe schody o współczesnym stylu. Piętro o charakterze strefy nocnej zawiera 3 sypialnie w tym 1 sypialnia posiada własną łazienkę i garderobę.
Energooszczędność:
wersja standardowa:
projekt spełnia wymagania cieplne dla nowo projektowanych domów określone w wt2008 ( rozporządzenie ministra infrastruktury dotyczące "warunków technicznych ,jakim powinny odpowiadać budynki i ich usytuowanie )
charakterystyka energetyczna w granicach 120 [kwh/m2/rok]
Wersja energooszczędna:
projekt dostępny w wersji energooszczędnej .czas realizacji zamówienia 10dni.
charakterystyka energetyczna w granicach 75 [kwh/m2/rok]
projekt w tej wersji posiada instalację wentylacji z odzyskiem ciepła oraz zmodyfikowane grubości izolacji fundamentów,podłóg,ścian, stropów i dachu.
1.1 Przedsionek 4.9
1.2 Hall 5.3
1.3 Gabinet 9.8
1.4 Wc 2.7
1.5 Kuchnia 14.5
1.6 Salon z jadalnią 42.5
1.7 Spiżarnia 1.7
1.8 Pom.gospodarcze 8.2
1.9 Garaż 2 st. 34.0
razem pu. parteru (bez garażu) 89.6
z garażem 123.6