Ściany:
Budynek został zaprojektowany w technologii murowanej ściany dwuwarstwowej z pustaka ceramicznego grubości 25cm docieplonego warstwą styropianu ze stropem gęstożebrowym.
Wykończenie:
Elewacje wykonano z tynku strukturalnego, okładziny ścian z okładziny klinkierowej lub drewnianej, cokół tynkowany lub z okładziny klinkierowej. Stolarka okienna drewniana lub PCV.
Dobór kolorystyki ścian i dachówki sprawia, że Magda będzie wyróżniała się swym wyglądem, przy jednoczesnym ograniczeniu kosztów realizacji.
Dach
Dach o konstrukcji drewnianej kryty dachówką ceramiczną.
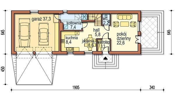
Magda jest niedużym, wygodnym piętrowym domem bez podpiwniczenia z przybudowanym garażem na dwa stanowiska, przeznaczonym dla 4-5 osobowej rodziny. Dom ma prostą, zwartą bryłę mieszczącą na rzucie prostokąta część mieszkalną wraz z dwustanowiskowym garażem. Maksymalne uproszczenie bryły domu i przekrycie dwuspadowym dachem obu części budynku sprawia, że jest tani i łatwy w realizacji.
Dom może być zbliżony na 3m od granicy działki ścianą garażu, która nie posiada okien. Ze względu na niewielką głębokość domu można go zrealizować na specyficznej działce o małej głębokości przy zachowaniu garażu dwustanowiskowego.
Część dzienna na parterze składa się z wiatrołapu, hallu, kuchni z jadalnią oraz wc i pokoju dziennego. Opócz tych pomieszczeń na parterze znajduje się pomieszczenie kotłowni i dwustanowiskowy garaż.
Część nocną na piętrze tworzą: dwie sypialnie dzieci, duża sypielnia rodziców z garderobą, hall łazienka ogólnodostępna. Wszystkie pomieszczenia na piętrze mają pełną wysokość kondygnacji i są doświetlone oknami.
Projekt dostępny także w lustrzanym odbiciu.