Dane techniczne
- Powierzchnia użytkowa 125.20 m²
- Powierzchnia zabudowy 133.10 m²
- Kubatura 715.00 m³
- Kąt nachylenia dachu 40.00°
- Wysokość budynku 8.06 m
- Min. wymiary działki 16.60x25.00 m
- Garaż 33.20 m²
- Pracownia Krajobrazy
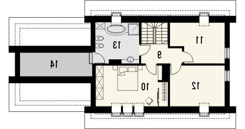
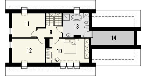
Technologia budowy
Opis
Dom jednorodzinny z garażem dwustanowiskowym. Na parterze zaprojektowano przestronny pokój dzienny, otwartą kuchnię ze spiżarnią, łazienkę, dodatkowy pokój oraz pomieszczenie gospodarcze. Na poddaszu znajdują się trzy sypialnie, łazienka oraz strych. Dokumentacja dostępna także w odbiciu lustrzanym.Nowoczesny dom o prostej bryle przykryty tanim dachem dwuspadowym. Duże okna doskonale doświetlają wnętrze domu, a kamienne i drewniane elementy elewacji dodają mu eleganckiego wyglądu.W budynku zaprojektowano ściany z betonu komórkowego ocieplone styropianem, strop jest gęstożebrowy, a więźba drewniana. Dach można pokryć dachówką ceramiczną albo cementową, elewacje otynkować, a fragmenty obłożyć płytką kamienną i drewnem. Inne materiały i technologie do użycia na etapie adaptacji.
Rzuty
1. wiatrołap 3.9m2
2. hall 8.5m2
3.salon z kuchnią 34.0m2
4. pokój 12.3m2
5.łazienka 3.9m2
6. spiżarnia 1.4m2
7. pom. gospodarcze 6.6m2
8. garaż 33.2m2
9. hall 4.8m2
10. pokój 16.1m2
11. pokój 11.2m2
12. pokój 12.7m2
13. łazienka 9.8m2
14. strych
Rzuty
1. wiatrołap 3.9m2
2. hall 8.5m2
3.salon z kuchnią 34.0m2
4. pokój 12.3m2
5.łazienka 3.9m2
6. spiżarnia 1.4m2
7. pom. gospodarcze 6.6m2
8. garaż 33.2m2
9. hall 4.8m2
10. pokój 16.1m2
11. pokój 11.2m2
12. pokój 12.7m2
13. łazienka 9.8m2
14. strych
Dbamy o swoich Klientów, jak nikt inny!
Do każdego projektu zakupionego za pośrednictwem serwisu kreoDOM.pl otrzymasz książeczkę z rabatami na zakupy w firmach Komfort, Fachowiec, Domino Łazienki, Komandor, Witek Home i innych. Książeczka na pewno okaże się przydatna podczas urządzania Twojego wymarzonego domu!
Książeczka z rabatami do takich firm jak: Komfort, Domino Łazienki, Fachowiec, Vox, Komandor, Witek Home i innych
Gwarancja
bezpiecznych zakupów
Dodatkowe pakiety projektowe
- Kosztorys inwestorski 950 zł
- Zielony pakiet z pompą ciepła 750 zł
- Aktualizacja do WT2021 850 zł