Dane techniczne
- Powierzchnia użytkowa 57.43 m²
- Powierzchnia zabudowy 67.70 m²
- Kubatura 392.00 m³
- Kąt nachylenia dachu 43.00°
- Wysokość budynku 7.24 m
- Min. wymiary działki 17.70x14.50 m
- Garaż 19.33 m²
- Pracownia Pro Arte
Technologia budowy
- Ściany zewnętrzne murowane grubości 30 cm, działowe gr. 12 cm.
- Wszystkie ściany wykonane z pustaków ceramicznych "POROTHERM".
- Konstrukcja więźby dachowej drewniana, pokrycie dachówka ceramiczna.
- Istnieje mozliwośc adaptacji obiektu na budynek całoroczny
- Docieplenie warstwą styropianu gr. 10 cm.
Opis
Projekt dostępny również jako CAŁOROCZNY!!!
Orlean 5 - projekt domu letniskowego z werandą i garażem. Funcknonalnością odzwierciedla projekt Orlean. Jednak garaż przyklejony do bryły budynku sprawia, że mamy do czynienia z zupełnie nową jakością. To rozwiązanie ucieszy tych, którzy dbają o swój samochód poprzez garażowanie go. Dom z garażem jest połączony w ten sposób, by towarzystwo garażu nie przeszkadzało domownikom (spaliny, oleje, hałas). Domu i garażu nie łączy wewnętrzne przejście. Całość jest imponująca i zaprojektowana, tak by cieszyć oko oraz zyskiwać uznanie przemyślanym rozplanowaniem wnętrz i ich funkcjonalnością.
Rzuty
RZUT PARTERU
- Wiatrołap z klatką schodową 7.45 m2
- Komunikacja z garderobą 3.52 m2
- Salon z aneksem kuchennym 20.91 m2
- Łazienka 4.47 m2
- Garaż 19.33 m2
- Weranda 8.87 m2
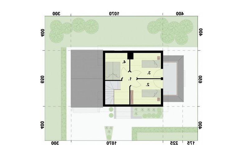
RZUT PODDASZA
- Komunikacja 5.76 m2
- Sypialnia 5.29 m2
- Sypialnia 6.38 m2
- Sypialnia 6.35 m2
Rzuty
RZUT PARTERU
- Wiatrołap z klatką schodową 7.45 m2
- Komunikacja z garderobą 3.52 m2
- Salon z aneksem kuchennym 20.91 m2
- Łazienka 4.47 m2
- Garaż 19.33 m2
- Weranda 8.87 m2
RZUT PODDASZA
- Komunikacja 5.76 m2
- Sypialnia 5.29 m2
- Sypialnia 6.38 m2
- Sypialnia 6.35 m2
Dbamy o swoich Klientów, jak nikt inny!
Do każdego projektu zakupionego za pośrednictwem serwisu kreoDOM.pl otrzymasz książeczkę z rabatami na zakupy w firmach Komfort, Fachowiec, Domino Łazienki, Komandor, Witek Home i innych. Książeczka na pewno okaże się przydatna podczas urządzania Twojego wymarzonego domu!
Książeczka z rabatami do takich firm jak: Komfort, Domino Łazienki, Fachowiec, Vox, Komandor, Witek Home i innych
Gwarancja
bezpiecznych zakupów
Dodatkowe pakiety projektowe
- Kosztorys inwestorski Zapytaj o dostępność