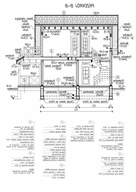
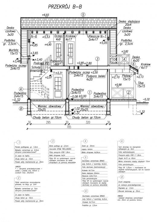
Technologia szkieletu drewnianego: - ściany zewnętrzne : słupki 4x15 rozstawione max. co 40cm obite zewnątrz płytą OSB 3 1,8cm , a wewnątrz płytą GK 1,25cm , przestrzeń pomiędzy słupkami wypełniona wełną mineralną 15cm - ściana wewnętrzna działowa : słupki 4x9 rozstawione max. co 40cm obite z dwóch stron płytą GK 1,25cm przestrzeń pomiędzy słupkami wypełniona wełną mineralną 9cm - zewnątrz obity deskami o gr 3cm i szer. 10cm - strop drewniany o konstrukcji belkowej - konstrukcja więźby dachowej drewniana w układzie krokwiowo-kleszczowym - pokrycie dachówka ceramiczna - docieplenie styropianem ryflowanym o gr. 5cm - istnieje możliwość adaptacji obiektu na budynek całoroczny - w przypadku wersji całorocznej docieplenie warstwą styropianu gr. 10 cm. - instalacja grzewcza w wersji całorocznej : ogrzewanie elektryczne (grzejniki konwektorowe płytowe)
| Wersja całoroczna szkieletowa | |
| Pow. użytkowa : | 54,87 m2 |
| Pow. zabudowy : | 45.5 m2 |
| Pow. całkowita : | 80,43 m2 |
| Kubatura : | 291 m3 |
| Wysokość budynku : | 7.08 m |
| Szerokość i długość : | 6.8m x 6.3m |
Orientacyjny koszt inwestycji Orlean Całoroczny(technologia tradycyjna): Stan pod klucz -192 053 zł (netto). Stan surowy zamknięty - budynek ocieplony, z pełną stolarką drzwiowo-okienną zewnętrzną, dach kryty dachówką ceramiczną, wszystkie powierzchnie pionowe i poziome przygotowane do położenia ostatniej warstwy wykończeniowej (tynk, płytki, panele). Realizacja tzw. "systemem gospodarczym" pozwala obniżyć koszty o około 30%.
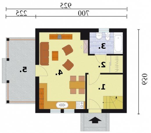
Projekt dostępny również jako CAŁOROCZNY!!! Cena projektu w wersji całorocznej- 2000zł. Orlean 2 - projekt domu letniskowego Wszystkim tym, którzy szukają czegoś oryginalnego, proponujemy zapoznanie się z projektem domku letniskowego Orlean 2. Za jego niepowtarzalny styl odpowiedzialne jest poddasze bez okien połaciowych oraz weranda z ślicznym balkonem stanowiącym jej zadaszenie. Jeżeli interesują Cię domki letniskowe z poddaszem, ale jesteś zwolennikiem tradycyjnej werandy to zapoznaj się z projektem Limy! Powracając do wyżej wspomnianego Orleanu zauważmy, że na poddaszu zostały rozmieszczone trzy sypialnie tak, aby każda posiadała własne wyjście na klatkę schodową. Idąc schodami w dół zejdziemy do niewielkiego przedsionka, z którego łatwo możemy przejść do pomieszczenia zwanego komunikacją, aby następnie odkryć okazały pokój dzienny z aneksem kuchennym oraz łazienkę. Wypada również wspomnieć o tym, że cała przestrzeń szybko i dogłębnie zostanie ogrzewana przez kominek; przy którym można spędzić mnóstwo romantycznych wieczorów! Drewniane oblicowanie dodaje projektowi tradycyjnego charakteru, jest to rozwiązanie ze wszech miar ekologiczne. Projekt składa się z części architektonicznej, konstrukcyjnej, wewnętrznych instalacji wod.-kan, c. o. i elektrycznej. W projekcie załączone są podstawowe zestawienie stali, drewna i stolarki okienno-drzwiowej. Do projektu dołączamy bezpłatną zgodę na wprowadzenie zmian, oświadczenie projektantów o wykonaniu projektu zgodnie z obowiązującymi normami i przepisami oraz kserokopie uprawnień projektantów wraz z aktualnym wpisem do izby.