Technologia i konstrukcja:
Ściany zewnętrzne: murowane, dwuwarstwowe, beton komórkowy 24 cm, ocieplenie styropian 20 cm
Strop: międzypiętrowy gęstożebrowy Teriva
Dach: konstrukcja drewniana, ocieplenie wełna mineralna 30 cm, dachówka ceramiczna płaska
Inne: schody wewnętrzne drewniane
Rozwiązania instalacyjne:
Ogrzewanie: kocioł gazowy kondensacyjny, rozprowadzenie ciepła: grzejniki
Wentylacja: grawitacyjna
Wykończenie:
Elewacje: tynk cienkowarstwowy mineralny w kolorze TO-PA001 z palety, okładzina z płyty HPL z naturalną okleiną drewnianą
Stolarka: drewniana, PVC lub aluminiowa, rolety zewnętrzne w systemie CleverBox
Okna połaciowe: rozwiązania technologiczne i wyłaz dachowy
Otoczenie: kwadratowa kostka betonowa w kolorze jasno szarym, płyty tarasowe imitujące drewno w kolorach brązowym i szarym, donice z betonu architektonicznego w kolorze białym
Riko G1 to prosty, nowoczesny i słoneczny dom, który idealnie wpisuje się w aktualne trendy. Zwarta forma w śnieżnobiałej oprawie wzbogaconej drewnem prezentuje się modnie i elegancko, a oprócz tego sprzyja energooszczędności i posiada bardzo dobre parametry cieplne. Wszystkie elementy zastosowane w projekcie doskonale się ze sobą komponują. Uwagę zwraca efektowna elewacja ogrodowa, którą wyposażono w szerokie przeszklenia oraz rewelacyjne strefy relaksu na świeżym powietrzu – atrakcyjny balkon z pięknym widokiem na okolicę oraz przytulny, częściowo osłonięty taras, na którym można swobodnie odpoczywać nawet w mniej pogodne dni. Riko G1 to nowoczesna wygoda w najlepszym wydaniu – świetna propozycja dla współczesnej rodziny!
Charakterystyka: Dom parterowy z poddaszem użytkowym, niepodpiwniczony, z garażem jednostanowiskowym
Przeznaczenie: Dom dla 3-5-osobowej rodziny
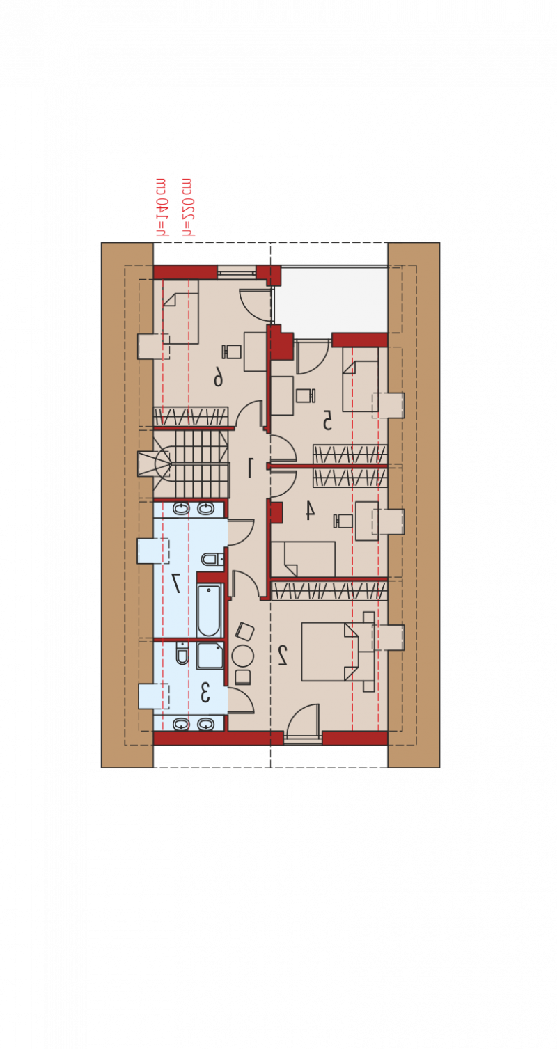
1. Wiatrołap5.42 m²
2. Hol schody15.25 m²
3. Kuchnia9.63 m²
4. Spiżarnia1.36 m²
5. Jadalnia10.42 m²
6. Pokój dzienny18.36 m²
7. Łazienka2.96 m²
8. Kotłownia5.07 m²
9. Garaż23.59 m²