Ściany: gazobeton, ceramika, silikaty
Strop: żelbetowy
Dach: dachówka, blachodachówka
Z358 to projekt domu współczesnego, z dachem dwuspadowym i dwustanowiskowym garażem.
Rzut budynku w kształcie litery L, o prostej stylistyce. Zdobienia elewacji w postaci okładziny drewnianej lub imitacji tynku. Ozdobne boniowania i nowoczesne lukarny przyciągną uwagę każdego przechodnia.
Na układ wewnętrzny parteru składają się rozmieszczone od strony ogrodu: kuchnia, oddzielona ścianką działową jadalnia, niespełna 30 metrowy, ustawny salon i nieduży gabinet ulokowany naprzeciwko. Całość dopełnia ciepły kominek przy którym domownicy zbierają się aby podjąć ważne życiowe decyzje.
Jeśli chodzi o funkcjonalność, to doskonałym rozwiązaniem są dwie pary drzwi do pomieszczenia gospodarczego. Dzięki nim możemy wejść do garażu bez konieczności wychodzenia na zewnątrz domu. Dodatkowo, jeśli zajdzie taka potrzeba - można przenieść bramę garażową na elewację frontową.
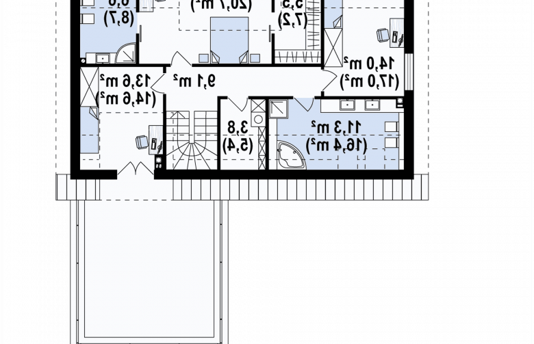
Piętro to 3 pokoje, które dzięki lukarnom zyskują powiększoną powierzchnię w pionie oraz dodatkową dozę światła dziennego. Największa z sypialni posiada osobistą łazienkę i garderobę, co doceni każdy ojciec zamieszkujący z dorastającymi córkami. Druga łazienka z podwójnymi umywalkami przypada na pozostałe dwa pokoje. Praktyczna pralnia śmiało może zostać dodatkowo wykorzystana jako schowek na szczotki, odkurzacz lub deskę do prasowania.
Jedna z sypialni posiada wyjście na ogromny taras. Można go urządzić wedle własnej koncepcji i doceniać za każdym razem, gdy wracamy z pracy.
Projekt Z358 łączy w sobie codzienny praktycyzm oraz gustowny smak zasłużonego wypoczynku.