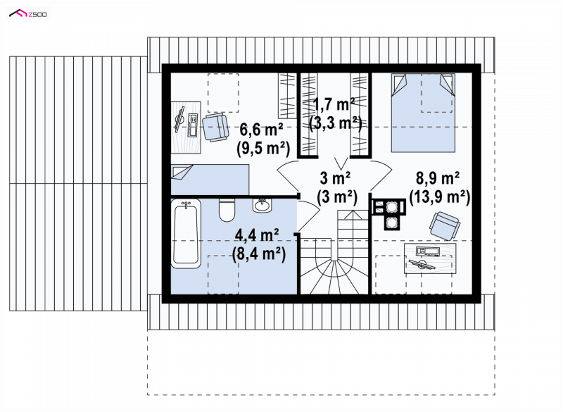
Dane techniczne
- Powierzchnia użytkowa 67.88 m²
- Powierzchnia zabudowy 76.55 m²
- Kubatura 246.70 m³
- Kąt nachylenia dachu 45.00°
- Powierzchnia dachu 150.70 m²
- Wysokość budynku 7.21 m
- Min. wymiary działki 14.30x19.15 m
- Garaż 20.80 m²
- Pracownia Studio Z500
Technologia budowy
INSTALACJA GRZEWCZA
W projekcie gaz, rekuperacja
PROPOZYCJE MATERIAŁOWE
ŚCIANY szkielet drewniany
STROP drewniany
DACH dachówka, blachodachówka
Opis
Dbamy o swoich Klientów, jak nikt inny!
Do każdego projektu zakupionego za pośrednictwem serwisu kreoDOM.pl otrzymasz książeczkę z rabatami na zakupy w firmach Komfort, Fachowiec, Domino Łazienki, Komandor, Witek Home i innych. Książeczka na pewno okaże się przydatna podczas urządzania Twojego wymarzonego domu!
Książeczka z rabatami do takich firm jak: Komfort, Domino Łazienki, Fachowiec, Vox, Komandor, Witek Home i innych
Gwarancja
bezpiecznych zakupów
Dodatkowe pakiety projektowe
- Kosztorys inwestorski 249,00zł
- Zestawienie materiałów 57,00 zł
- Wentylacja mechaniczna z rekuperacja 550,00 zł
- Pompa ciepła 250,00 zł
- Kotłownia na paliwo stałe zapytaj o dostępność
- Ogrzewanie podłogowe 350,00 zł
- Kolektory słoneczne 250,00 zł
- Przydomowa oczyszczalnia ścieków 350,00 zł
- Wersja elektroniczna projektu 197,00 zł
- Dodatkowy egzemplarz projektu 249,00 zł