Dane techniczne
- Powierzchnia użytkowa 67.80 m²
- Powierzchnia zabudowy 67.50 m²
- Kubatura 411.30 m³
- Kąt nachylenia dachu 45.00°
- Wysokość budynku 7.16 m
- Min. wymiary działki 19.00x17.50 m
- Garaż 16.90 m²
- Pracownia MOJ-DOM
Technologia budowy
Fundamenty: żelbetowe, wylewane
Ściany zewnętrzne: szkieletowe ocieplone wełną mineralną
Strop: belkowy drewniany otwarty
Schody: drewniane
Pokrycie dachu: blachodachówka
Nachylenie dachu: 45° i 20°
Sposób ogrzewania: piec dwufunkcyjny na gaz ziemny lub płynny.
Opis
Budynek jednorodzinny, parterowy, z poddaszem mieszkalnym, niepodpiwniczony, 4 pokoje, kuchnia, garaż
Rzuty
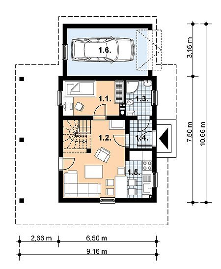
1. sypialnia8.6 m2
2. pokój dzienny18.4 m2
3. łazienka3.9 m2
4. wiatrołap2.9 m2
5. kuchnia4.6 m2
6. garaż16.9 m2
1. sypialnia13.0 m2
2. komunikacja4.6 m2
3. sypialnia17.3 m2
4. pom. gospodarcze4.4 m2
Rzuty
1. sypialnia8.6 m2
2. pokój dzienny18.4 m2
3. łazienka3.9 m2
4. wiatrołap2.9 m2
5. kuchnia4.6 m2
6. garaż16.9 m2
1. sypialnia13.0 m2
2. komunikacja4.6 m2
3. sypialnia17.3 m2
4. pom. gospodarcze4.4 m2
Dbamy o swoich Klientów, jak nikt inny!
Do każdego projektu zakupionego za pośrednictwem serwisu kreoDOM.pl otrzymasz książeczkę z rabatami na zakupy w firmach Komfort, Fachowiec, Domino Łazienki, Komandor, Witek Home i innych. Książeczka na pewno okaże się przydatna podczas urządzania Twojego wymarzonego domu!
Książeczka z rabatami do takich firm jak: Komfort, Domino Łazienki, Fachowiec, Vox, Komandor, Witek Home i innych
Gwarancja
bezpiecznych zakupów
Dodatkowe pakiety projektowe