Dane techniczne
- Powierzchnia użytkowa 41.20 m²
- Powierzchnia zabudowy 24.90 m²
- Kubatura 108.20 m³
- Kąt nachylenia dachu 45.00°
- Wysokość budynku 5.70 m
- Min. wymiary działki 15.50x10.50 m
- Pracownia MOJ-DOM
Technologia budowy
Fundamenty: żelbetowe, wylewane
Ściany zewnętrzne: z bali drewnianych gr. 12 cm bez ocieplenia
Strop: belkowy, drewniany, otwarty
Pokrycie dachu: blachodachówka
Nachylenie dachu: 45°
Opis
Budynek letniskowy parterowy z podddaszem sypialnym lub wersja jako budynek gospodarczy.
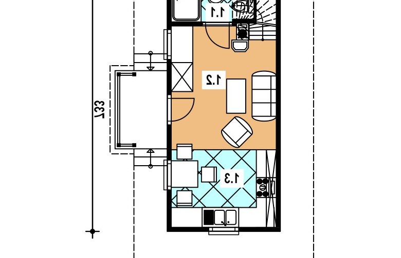
Rzuty
- Łazienka 2,20 m²
- Pokój 11,30 m²
- Kuchnia 7,40 m²
- Sypialnia poddasze 20,30 m²
Rzuty
- Łazienka 2,20 m²
- Pokój 11,30 m²
- Kuchnia 7,40 m²
- Sypialnia poddasze 20,30 m²
Dbamy o swoich Klientów, jak nikt inny!
Do każdego projektu zakupionego za pośrednictwem serwisu kreoDOM.pl otrzymasz książeczkę z rabatami na zakupy w firmach Komfort, Fachowiec, Domino Łazienki, Komandor, Witek Home i innych. Książeczka na pewno okaże się przydatna podczas urządzania Twojego wymarzonego domu!
Książeczka z rabatami do takich firm jak: Komfort, Domino Łazienki, Fachowiec, Vox, Komandor, Witek Home i innych
Gwarancja
bezpiecznych zakupów
Dodatkowe pakiety projektowe