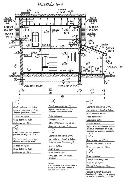
Technologia tradycyjna , ściany zewnętrzne murowane grubości 30 cm, działowe gr. 12 cm. Wszystkie ściany wykonane z pustaków ceramicznych "POROTHERM".Strop gęstożebrowy „POROTHERM”o gr. 23 cm.. Konstrukcja więźby dachowej drewniana, pokrycie dachówka ceramiczna. Istnieje możliwośc adaptacji obiektu na budynek całoroczny - docieplenie warstwą styropianu gr. 10 cm.
Źródłem ciepła dla celów c.o. jest ogrzewanie elektryczne. Jako elementy grzejne zastosowano grzejniki konwewktorowe płytowe.
Ciepła woda będzie uzyskiwana z przepływowego podgrzewacza wody.
Projekt dostępny również jako CAŁOROCZNY!!!
"Lima" Domek letniskowy Lima jest dostępny także w wersji całorocznej. Budynek nie jest podpiwniczony, ale jego atutem jest zapewne fakt, iż posiada poddasze. Wejście zostało umieszczone w niewielkim pseudoryzalicie, tworzącym dodatkową przestrzeń wewnątrz domu. Elewacja boczna lewa została rozbudowana o zadaszony taras – miejsce szczególnie ważne, gdy potrzebujemy wypoczynku na świeżym powietrzu. Do domu wchodzimy przez, umieszczony we wspomnianym pseudoryzalicie, wiatrołap, w którym można urządzić schowek na zbędne wewnątrz sprzęty. Następnie przechodzimy do komunikacji, z której możemy się udać w dowolne miejsce parteru. Od strony południowo-wschodniej domu mamy łazienkę z miejscem na wannę. Kolejnym pomieszczeniem w tej części domu jest, oddzielona od reszty pomieszczeń, kuchnia. Z komunikacji można także przejść do obszernego pokoju dziennego, gdzie dodatkowo został wydzielony aneks sypialny. Tutaj także zostało przewidziane wyjście na obszerny taras z wyjściem do ogrodu. Poddasze natomiast to ciekawa kombinacja niezwykle funkcjonalnych pomieszczeń. Przewidziano tutaj miejsce na obszerną sypialnię, której okna wychodzą na zachód. Po przeciwnej stronie zaprojektowano mniejszy pokój, który możemy zaadaptować w dowolny sposób – przeznaczając go na kolejną sypialnię, czy też zaciszne miejsce pracy. Mamy tutaj jeszcze pomieszczenie gospodarcze, przydatne w każdym domku letniskowym. Umieszczenie go na piętrze, może pomóc w chronieniu przed złodziejami przechowywanego tu sprzętu. Projekt Lima jest rozwiązaniem całkowicie satysfakcjonującym dla kilkuosobowej rodziny, pragnącej wygodnego domku letniskowego.