Dane techniczne
- Powierzchnia użytkowa 104.34 m²
- Powierzchnia zabudowy 136.52 m²
- Kubatura 473.70 m³
- Kąt nachylenia dachu 45.00°
- Powierzchnia dachu 124.00 m²
- Wysokość budynku 8.40 m
- Min. wymiary działki 19.40x26.10 m
- Garaż 22.65 m²
- Pracownia Archipelag
Technologia budowy
Technologia i wykończenie:
Fundamenty: ławy, bloczki betonowe lub keramzytowe 24 cm, ocieplenie styropian 15 cm
Ściany zewnętrzne: murowane, dwuwarstwowe, pustaki ceramiczne 24 cm, ocieplenie 20 cm
Ściany wewnętrzne: murowane ściany 24 cm, ścianki działowe 10 cm
Podłoga na gruncie: płyta betonowa, ocieplenie styropian 15 cm
Strop i stropodach nad garażem: strop międzypiętrowy gęstożebrowy Teriva, stropodach: strop żelbetowy
Dach: konstrukcja drewniana, ocieplenie wełna mineralna 30 cm, dachówka ceramiczna Röben
Elewacja: tynk cienkowarstwowy i okładzina klinkierowa
Stolarka: drewniana, PCV lub aluminiowa
Okna połaciowe: rozwiązania technologiczne firmy FAKRO
Inne: ażurowa pergola drewniana
Opis
Dom E13 II G1 ECONOMIC to udany mariaż tradycji z nowoczesnością. Ciekawa forma budynku w parze z atrakcyjną kompozycją elewacji tworzy wspólnie intrygujący efekt wizualny. Dużym atutem projektu jest czytelny podział stref, który rozdziela rytm dnia i noc między przestrzeń parteru i poddasza. Dodatkową oazę relaksu zaplanowano na tarasie nad garażem.
Charakterystyka: dom parterowy z poddaszem użytkowym, niepodpiwniczony, z garażem jednostanowiskowym
Przeznaczenie: dom dla 4-osobowej rodziny
Układ funkcjonalny:
Strefa dzienna – parter: salon z jadalnią i kominkiem oraz kuchnia
Dodatkowo na parterze: spiżarnia, toaleta, duża kotłownia i garaż
Strefa nocna – poddasze: dwie duże sypialnie, komfortowa sypialnia główna z garderobą oraz łazienka
Dostępne wersje:
- E13 II ECONOMIC - bez garażu lub z garażem dwustanowiskowym
- Odbicie lustrzane do każdej wersji
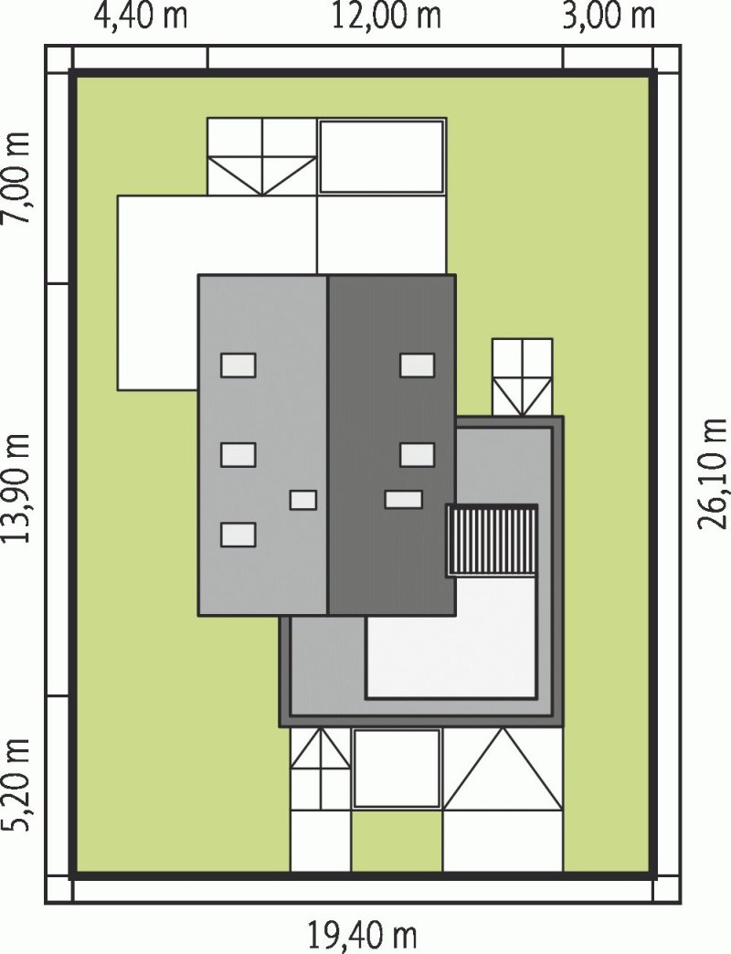
Rzuty
PARTER
- Wiatrołap 4.25 m2
- Hol z klatką schodową 13.40 m2
- Kuchnia 9.53 m2
- Spiżarnia 1.15 m2
- Pokój dzienny jadalnia 29.35 m2
- Toaleta 1.49 m2
- Kotłownia 12.03 m2
- Garaż 22.65 m2
PODDASZE
- Korytarz 4.80 m2
- Sypialnia 14.05 m2
- Sypialnia 10.29 m2
- Sypialnia 10.30 m2
- Łazienka 5.73 m2
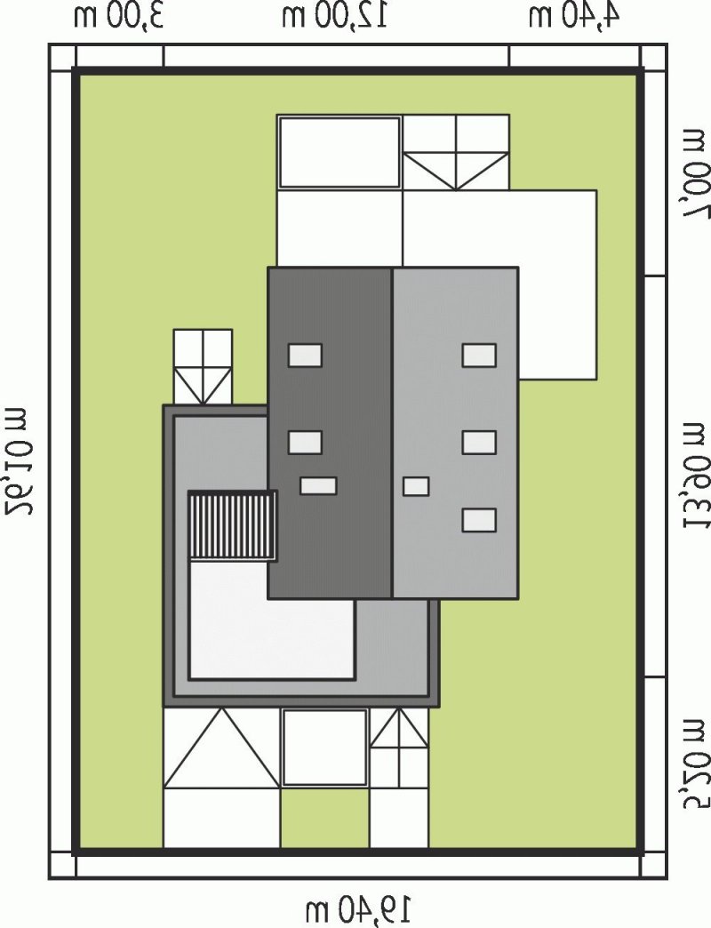
Rzuty
PARTER
- Wiatrołap 4.25 m2
- Hol z klatką schodową 13.40 m2
- Kuchnia 9.53 m2
- Spiżarnia 1.15 m2
- Pokój dzienny jadalnia 29.35 m2
- Toaleta 1.49 m2
- Kotłownia 12.03 m2
- Garaż 22.65 m2
PODDASZE
- Korytarz 4.80 m2
- Sypialnia 14.05 m2
- Sypialnia 10.29 m2
- Sypialnia 10.30 m2
- Łazienka 5.73 m2
Dbamy o swoich Klientów, jak nikt inny!
Do każdego projektu zakupionego za pośrednictwem serwisu kreoDOM.pl otrzymasz książeczkę z rabatami na zakupy w firmach Komfort, Fachowiec, Domino Łazienki, Komandor, Witek Home i innych. Książeczka na pewno okaże się przydatna podczas urządzania Twojego wymarzonego domu!
Książeczka z rabatami do takich firm jak: Komfort, Domino Łazienki, Fachowiec, Vox, Komandor, Witek Home i innych
Gwarancja
bezpiecznych zakupów
Dodatkowe pakiety projektowe
- Kosztorys inwestorski cena ustalana indywidualnie
- Wentylacja mechaniczna z rekuperacją 700,00 zł
- Wentylacja mechaniczna + GPWC 700,00 zł
- Kolektory Słoneczne 400,00 zł
- Panele Fotowoltaiczne 400,00 zł
- Pompa Ciepła 500,00 zł
- Kominek z DGP 400,00 zł
- Biologiczna oczyszczalnia ścieków 150,00 zł
- Centralny Odkurzacz 300,00 zł
- Szambo przydomowe 200,00 zł
- Dodatkowy egzemplarz projektu 150,00 zł