Ściany zewnętrzne 2-warstwowe: Beton komórkowy ( 24cm) / Pustak ceramiczny (25cm) + styropian 20cm Uściany < 0,20 W/(m2*K) – warunek spełniony.
Ławy fundamentowe tradycyjne: Ściany fundamentowe betonowe gr.24(25cm) z bloczków betonowych lub wylewane.
Stropy: płyta żelbetowa. Zamiennie można zastosować strop gęstożeberkowy typu TERIVA .
Konstrukcja dachu: tradycyjna drewniana, pokrycie dachu z dachówki ceramicznej.
Elewacje: pokryte tynkiem strukturalnym cienkowarstwowym.
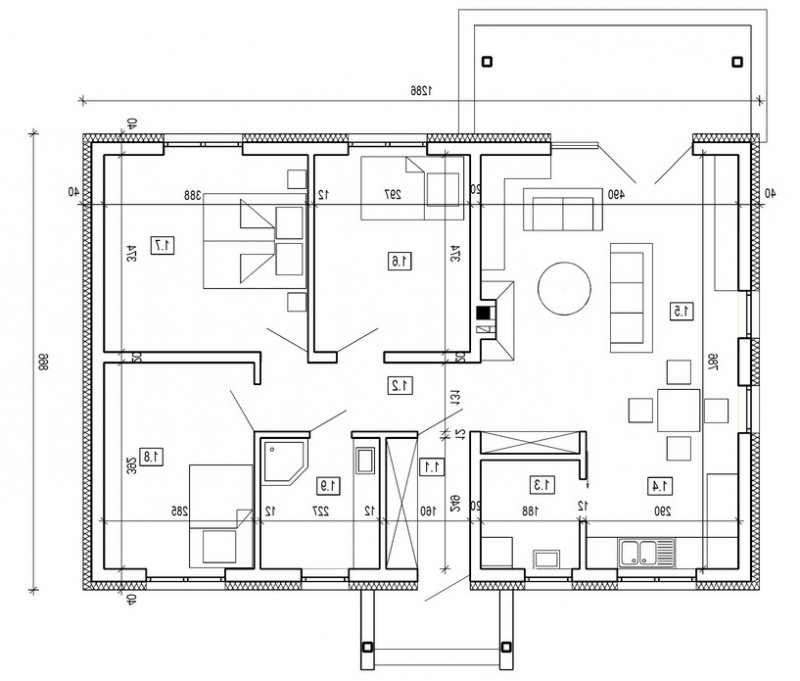
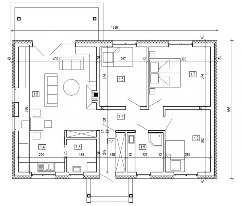
Dom parterowy o powierzchni 89.6 m2, będący alternatywą dla czteropokojowego mieszkania. Dom zaprojektowano w sposób bardzo ekonomiczny i funkcjonalny, a jego realizacja jest przewidziana systemem całkowicie gospodarczym lub pół-gospodarczym. Ujmując ściślej - jest to dom do samodzielnego wybudowania przez przyszłych domowników, nie zawiera elementów trudnych do wykonania oraz kosztochłonnych.
Energooszczędność:
Wersja standardowa:
Projekt spełnia wymagania cieplne dla nowo projektowanych domów określone w WT2008 (Rozporządzenie Ministra Infrastruktury dotyczące warunków technicznych, jakim powinny odpowiadać budynki i ich usytuowanie). Charakterystyka energetyczna w granicach 120 [kWh/m2/rok].
Wersja energooszczędna:
Projekt dostępny w wersji energooszczędnej .Czas realizacji zamówienia 10dni.
Charakterystyka energetyczna w granicach 75 [kWh/m2/rok].
Projekt w tej wersji posiada instalację wentylacji z odzyskiem ciepła oraz zmodyfikowane grubości izolacji fundamentów, podłóg, ścian, stropów i dachu.