Dane techniczne
- Powierzchnia użytkowa 90.00 m²
- Powierzchnia zabudowy 115.16 m²
- Kubatura 580.00 m³
- Kąt nachylenia dachu 35.00°
- Wysokość budynku 7.00 m
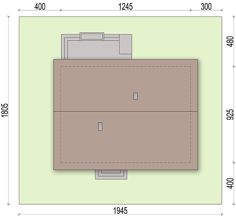
- Min. wymiary działki 19.45x18.05 m
- Pracownia Archand
Technologia budowy
Ściany nośne i działowe z pustaków ceramicznych
Strop: gęstożebrowy
Dach: drewniany, dachówka ceramiczna
Opis
Pistacja to mały urokliwy domek, przeznaczony dla 4-5 osobowej rodziny.
Mimo niewielkich rozmiarów, dzięki dobrze zagospodarowanej przestrzeni, dom będzie bardzo wygodny w użytkowaniu.
Niewątpliwym atutem projektu jest jasny podział na strefę dzienną i nocną. W tej drugiej zlokalizowano trzy sypialnie, oraz łazienkę z miejscem na pralkę. W domu przewidziano duży salon połączony z kuchnią. Projekt posiada również pomieszczenie gospodarcze z bezpośrednim wyjściem na ogród.
W projekcie zastosowano wyłącznie typowe i sprawdzone rozwiązania, co znacznie ułatwi budowę.
Dbamy o swoich Klientów, jak nikt inny!
Do każdego projektu zakupionego za pośrednictwem serwisu kreoDOM.pl otrzymasz książeczkę z rabatami na zakupy w firmach Komfort, Fachowiec, Domino Łazienki, Komandor, Witek Home i innych. Książeczka na pewno okaże się przydatna podczas urządzania Twojego wymarzonego domu!
Książeczka z rabatami do takich firm jak: Komfort, Domino Łazienki, Fachowiec, Vox, Komandor, Witek Home i innych
Gwarancja
bezpiecznych zakupów
Dodatkowe pakiety projektowe
- Kosztorys inwestorski 590,00 zł
- 5 egz. Projektu 290,00 zł
- Zamówiony kosztorys razem z projektem 390,00 zł
- 5 egz. Projektu zamówione razem z projektem 190,00 zł