Dane techniczne
- Powierzchnia użytkowa 130.39 m²
- Powierzchnia zabudowy 233.81 m²
- Kubatura 713.36 m³
- Kąt nachylenia dachu 30.00°
- Powierzchnia dachu 321.81 m²
- Wysokość budynku 7.69 m
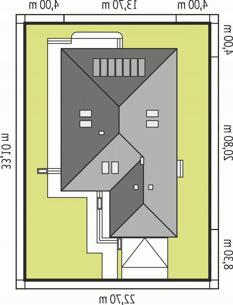
- Min. wymiary działki 22.70x33.10 m
- Garaż 29.22 m²
- Pracownia Archipelag
Technologia budowy
Technologia i wykończenie:
Fundamenty: ławy, bloczki betonowe 24 cm, ocieplenie styropian 15 cm
Ściany zewnętrzne: murowane, dwuwarstwowe, beton komórkowy 24 cm, ocieplenie 25 cm
Ściany wewnętrzne: murowane, cegła wapienno-piaskowa, ściany nośne 24 cm, ścianki działowe 12 cm
Podłoga na gruncie: płyta betonowa, ocieplenie wełna mineralna 20 cm
Strop: strop międzypiętrowy gęstożebrowy Teriva
Dach: konstrukcja drewniana, ocieplenie wełna mineralna 30 cm, dachówka ceramiczna
Elewacja: tynk cienkowarstwowy mineralny i okładzina drewniana
Stolarka: drewniana, PCV lub aluminiowa
Opis
Liv 3 G2 to subtelna elegancja w najczystszym wydaniu. Dzięki szerokim, optymalnie rozmieszczonym przeszkleniom, wnętrza są doskonale doświetlone i wypełnione naturalnym blaskiem. Na szczególną uwagę zasługuje atrakcyjny salon z nastrojowym kominkiem oraz częściowo zadaszony taras, który pozwala na wyciszony wypoczynek w otoczeniu kojącej zieleni ogrodowych roślin.
Rzuty
PARTER
- Wiatrołap 5.54 m2
- Hol 10.47 m2
- Kuchnia 9.90 m2
- Spiżarnia 1.62 m2
- Jadalnia 10.46 m2
- Pokój dzienny 31.34 m2
- Łazienka 2.11 m2
- Korytarz schody 11.14 m2
- Sypialnia 12.84 m2
- Garderoba 5.45 m2
- Sypialnia 10.92 m2
- Sypialnia 10.92 m2
- Łazienka 7.68 m2
- Kotłownia 10.59 m2
- Garaż 29.22 m2
PODDASZE DO ADAPTACJI
- Poddasze do adaptacji 58.60 m2
Rzuty
PARTER
- Wiatrołap 5.54 m2
- Hol 10.47 m2
- Kuchnia 9.90 m2
- Spiżarnia 1.62 m2
- Jadalnia 10.46 m2
- Pokój dzienny 31.34 m2
- Łazienka 2.11 m2
- Korytarz schody 11.14 m2
- Sypialnia 12.84 m2
- Garderoba 5.45 m2
- Sypialnia 10.92 m2
- Sypialnia 10.92 m2
- Łazienka 7.68 m2
- Kotłownia 10.59 m2
- Garaż 29.22 m2
PODDASZE DO ADAPTACJI
- Poddasze do adaptacji 58.60 m2
Dbamy o swoich Klientów, jak nikt inny!
Do każdego projektu zakupionego za pośrednictwem serwisu kreoDOM.pl otrzymasz książeczkę z rabatami na zakupy w firmach Komfort, Fachowiec, Domino Łazienki, Komandor, Witek Home i innych. Książeczka na pewno okaże się przydatna podczas urządzania Twojego wymarzonego domu!
Książeczka z rabatami do takich firm jak: Komfort, Domino Łazienki, Fachowiec, Vox, Komandor, Witek Home i innych
Gwarancja
bezpiecznych zakupów
Dodatkowe pakiety projektowe
- Kosztorys inwestorski cena ustalana indywidualnie
- Wentylacja mechaniczna z rekuperacją 700,00 zł
- Wentylacja mechaniczna + GPWC 700,00 zł
- Kolektory Słoneczne 400,00 zł
- Panele Fotowoltaiczne 400,00 zł
- Pompa Ciepła 500,00 zł
- Kominek z DGP 400,00 zł
- Biologiczna oczyszczalnia ścieków 150,00 zł
- Centralny Odkurzacz 300,00 zł
- Szambo przydomowe 200,00 zł
- Dodatkowy egzemplarz projektu 150,00 zł