Dane techniczne
- Powierzchnia użytkowa 121.71 m²
- Powierzchnia zabudowy 196.66 m²
- Kubatura 448.41 m³
- Kąt nachylenia dachu 30.00°
- Powierzchnia dachu 273.78 m²
- Wysokość budynku 7.08 m
- Min. wymiary działki 20.20x25.60 m
- Garaż 19.77 m²
- Pracownia Archipelag
Technologia budowy
Dom zaprojektowany w technologii murowej ze stropem gęstożebrowym. Dach o konstrukcji drewnianej pokryty dachówką ceramiczną lub cementową. Elewacje wykończono tynkiem mineralnym i okładziną drewnianą i klinkierową, cokół kamienny. Stolarka okienna drewniana lub PCV.
Opis
Dom parterowy, niepodpiwniczony (istnieje możliwość podpiwniczenia), z garażem jedno- lub dwustanowiskowym. Glen G1 olśniewa swoją klasyczną elegancją. Charakter domu podkreślają gustownie dobrane detale. Dużym atutem Glena G1 jest funkcjonalny układ pomieszczeń. Na parterze zaprojektowano strefę dzienną: komfortowy salon z kominkiem, rozświetloną kuchnię ze spiżarnią oraz jadalnię. W strefie nocnej znalazły się trzy sypialnie oraz łazienka. Dodatkowo, dom wyposażono w duże, praktyczne pomieszczenie gospodarcze, z wyjściem na ogród. Czarującą strefą Glena G1 jest obszerny, częściowo zadaszony taras dostępny z salonu. Glen G1 to doskonała propozycja dla 3-4 osobowej rodziny, która marzy o przytulnych i stylowych przestrzeniach. Istnieje również wersja projektu Glen II G1, w której przeniesiono ścianę między pokojem dziennym a korytarzem, co umożliwiło stworzenie komfortowej garderoby z zestawem szaf wnękowych, dostępnych z korytarza obejmującego zespół trzech sypialni i łazienkę. Istnieje także wersja projektu Glen III G1 - dom parterowy z możliwością adaptacji poddasza, o kącie nachylenia dachu 33º. Powierzchnia użytkowa poddasza 41,78 m².
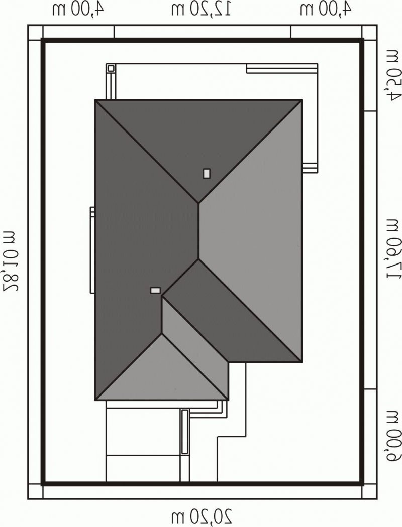
Rzuty
PARTER
- Wiatrołap 3.22 m2
- Hol 7.66 m2
- Kuchnia 11.46 m2
- Spiżarnia 3.08 m2
- Pokój dzienny jadalnia 40.72 m2
- Łazienka 2.47 m2
- Korytarz 9.94 m2
- Sypialnia 12.13 m2
- Sypialnia 12.13 m2
- Sypialnia 12.04 m2
- Łazienka 6.86 m2
- Kotłownia 6.64 m2
- Garaż 19.77 m2
Rzuty
PARTER
- Wiatrołap 3.22 m2
- Hol 7.66 m2
- Kuchnia 11.46 m2
- Spiżarnia 3.08 m2
- Pokój dzienny jadalnia 40.72 m2
- Łazienka 2.47 m2
- Korytarz 9.94 m2
- Sypialnia 12.13 m2
- Sypialnia 12.13 m2
- Sypialnia 12.04 m2
- Łazienka 6.86 m2
- Kotłownia 6.64 m2
- Garaż 19.77 m2
Dbamy o swoich Klientów, jak nikt inny!
Do każdego projektu zakupionego za pośrednictwem serwisu kreoDOM.pl otrzymasz książeczkę z rabatami na zakupy w firmach Komfort, Fachowiec, Domino Łazienki, Komandor, Witek Home i innych. Książeczka na pewno okaże się przydatna podczas urządzania Twojego wymarzonego domu!
Książeczka z rabatami do takich firm jak: Komfort, Domino Łazienki, Fachowiec, Vox, Komandor, Witek Home i innych
Gwarancja
bezpiecznych zakupów
Dodatkowe pakiety projektowe
- Kosztorys inwestorski cena ustalana indywidualnie
- Wentylacja mechaniczna z rekuperacją 700,00 zł
- Wentylacja mechaniczna + GPWC 700,00 zł
- Kolektory Słoneczne 400,00 zł
- Panele Fotowoltaiczne 400,00 zł
- Pompa Ciepła 500,00 zł
- Kominek z DGP 400,00 zł
- Biologiczna oczyszczalnia ścieków 150,00 zł
- Centralny Odkurzacz 300,00 zł
- Szambo przydomowe 200,00 zł
- Dodatkowy egzemplarz projektu 150,00 zł