Dane techniczne
- Powierzchnia użytkowa 131.12 m²
- Powierzchnia zabudowy 196.48 m²
- Kubatura 446.09 m³
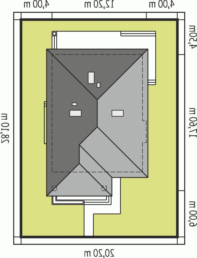
- Kąt nachylenia dachu 33.00°
- Powierzchnia dachu 282.00 m²
- Wysokość budynku 7.56 m
- Min. wymiary działki 20.20x28.10 m
- Pracownia Archipelag
Technologia budowy
Dom zaprojektowany w technologii murowej ze stropem gęsto żebrowym. Schody wewnętrzne drewniane. Dach o konstrukcji drewnianej pokryty dachówką cementową IBF. Elewacje wykończono tynkiem mineralnym i okładziną drewnianą, cokół kamienny. Stolarka okienna drewniana lub PCV.
Opis
Dom parterowy z poddaszem do adaptacji, niepodpiwniczony. Przeznaczony dla 4-5-osobowej rodziny. Atutem domu jest funkcjonalny układ pomieszczeń. Strefa dzienna składa się z salonu z kominkiem, kuchni ze spiżarnią oraz jadalni. Strefę nocną tworzą trzy sypialnie oraz łazienka. Ponadto zaprojektowano toaletę oraz duże pomieszczenie gospodarcze z wyjściem na taras.„Glen III” olśniewa swoją klasyczną elegancją oraz przytulnymi i stylowymi przestrzeniami. Częściowo zadaszone tarasy - pierwszy dostępny z salonu, drugi od frontu budynku, stwarzają możliwość wypoczynku zarówno w upalne jak i deszczowe dni. Istnieje możliwość podpiwniczenia domu. Dostępne wersje - Glen III G1 - z garażem jednostanowiskowym - Glen III G2 - z garażem dwustanowiskowym - Glen – parterowy, kąt dachu 30° - Glen G1- z garażem jednostanowiskowym - Glen G2- z garażem dwustanowiskowym - Glen II – parterowy, z dodatkową garderobą , kąt dachu 30° - Glen II G1- z garażem jednostanowiskowym - Glen II G2- z garażem dwustanowiskowym - Odbicia lustrzane do wszystkich wersji .
Rzuty
PARTER
- Wiatrołap 4.33 m2
- Hol 11.46 m2
- Kuchnia 11.46 m2
- Spiżarnia 2.20 m2
- Pokój dzienny jadalnia 40.73 m2
- Łazienka 3.14 m2
- Korytarz 10.17 m2
- Sypialnia 16.30 m2
- Sypialnia 12.13 m2
- Sypialnia 12.13 m2
- Łazienka 6.82 m2
- Pom. gospodarcze 8.90 m2
PODDASZE DO ADAPTACJI
- Poddasze do adaptacji 42.40 m2
Rzuty
PARTER
- Wiatrołap 4.33 m2
- Hol 11.46 m2
- Kuchnia 11.46 m2
- Spiżarnia 2.20 m2
- Pokój dzienny jadalnia 40.73 m2
- Łazienka 3.14 m2
- Korytarz 10.17 m2
- Sypialnia 16.30 m2
- Sypialnia 12.13 m2
- Sypialnia 12.13 m2
- Łazienka 6.82 m2
- Pom. gospodarcze 8.90 m2
PODDASZE DO ADAPTACJI
- Poddasze do adaptacji 42.40 m2
Dbamy o swoich Klientów, jak nikt inny!
Do każdego projektu zakupionego za pośrednictwem serwisu kreoDOM.pl otrzymasz książeczkę z rabatami na zakupy w firmach Komfort, Fachowiec, Domino Łazienki, Komandor, Witek Home i innych. Książeczka na pewno okaże się przydatna podczas urządzania Twojego wymarzonego domu!
Książeczka z rabatami do takich firm jak: Komfort, Domino Łazienki, Fachowiec, Vox, Komandor, Witek Home i innych
Gwarancja
bezpiecznych zakupów
Dodatkowe pakiety projektowe
- Kosztorys inwestorski cena ustalana indywidualnie
- Wentylacja mechaniczna z rekuperacją 700,00 zł
- Wentylacja mechaniczna + GPWC 700,00 zł
- Kolektory Słoneczne 400,00 zł
- Panele Fotowoltaiczne 400,00 zł
- Pompa Ciepła 500,00 zł
- Kominek z DGP 400,00 zł
- Biologiczna oczyszczalnia ścieków 150,00 zł
- Centralny Odkurzacz 300,00 zł
- Szambo przydomowe 200,00 zł
- Dodatkowy egzemplarz projektu 150,00 zł