Dane techniczne
- Powierzchnia użytkowa 98.99 m²
- Powierzchnia zabudowy 162.41 m²
- Kubatura 360.85 m³
- Kąt nachylenia dachu 30.00°
- Powierzchnia dachu 243.00 m²
- Wysokość budynku 6.70 m
- Min. wymiary działki 19.00x28.40 m
- Garaż 19.32 m²
- Pracownia Archipelag
Technologia budowy
Budynek zaprojektowano w technologii murowej z ociepleniem i stropem gęstożebrowym. Dach o konstrukcji drewnianej pokryty dachówką cementową. Więźba dachowa dostępna również w systemie prefabrykacji drewnianej. Elewację wykończono tynkiem mineralnym. Stolarka okienna drewniana.
Opis
Dom parterowy, niepodpiwniczony, z wbudowanym garażem, przeznaczony dla 4-osobowej rodziny. Wysokość dachu w jego centralnej części pozwala na zaadaptowanie poddasza na cele użytkowe. Na parterze, obok strefy wejściowej, znajduje się kuchnia, która poprzez jadalnię łączy się z pokojem dziennym. Z pokoju wychodzi się na taras łączący dom z ogrodem. Po prawej stronie znajduje się strefa nocna: dwie sypialnie, łazienka oraz gabinet.
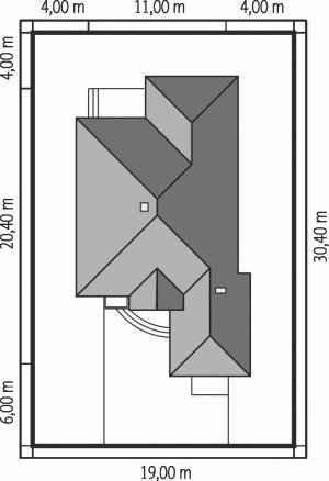
Rzuty
PARTER
- Wiatrołap 4.45 m2
- Hol 6.44 m2
- Kuchnia 9.90 m2
- Pokój dzienny jadalnia 25.04 m2
- Gabinet 9.41 m2
- Toaleta 1.04 m2
- Korytarz 11.91 m2
- Sypialnia 15.31 m2
- Sypialnia 9.72 m2
- Łazienka 5.77 m2
- Kotłownia 3.76 m2
- Garaż 19.32 m2
Rzuty
PARTER
- Wiatrołap 4.45 m2
- Hol 6.44 m2
- Kuchnia 9.90 m2
- Pokój dzienny jadalnia 25.04 m2
- Gabinet 9.41 m2
- Toaleta 1.04 m2
- Korytarz 11.91 m2
- Sypialnia 15.31 m2
- Sypialnia 9.72 m2
- Łazienka 5.77 m2
- Kotłownia 3.76 m2
- Garaż 19.32 m2
Dbamy o swoich Klientów, jak nikt inny!
Do każdego projektu zakupionego za pośrednictwem serwisu kreoDOM.pl otrzymasz książeczkę z rabatami na zakupy w firmach Komfort, Fachowiec, Domino Łazienki, Komandor, Witek Home i innych. Książeczka na pewno okaże się przydatna podczas urządzania Twojego wymarzonego domu!
Książeczka z rabatami do takich firm jak: Komfort, Domino Łazienki, Fachowiec, Vox, Komandor, Witek Home i innych
Gwarancja
bezpiecznych zakupów
Dodatkowe pakiety projektowe
- Kosztorys inwestorski cena ustalana indywidualnie
- Wentylacja mechaniczna z rekuperacją 700,00 zł
- Wentylacja mechaniczna + GPWC 700,00 zł
- Kolektory Słoneczne 400,00 zł
- Panele Fotowoltaiczne 400,00 zł
- Pompa Ciepła 500,00 zł
- Kominek z DGP 400,00 zł
- Biologiczna oczyszczalnia ścieków 150,00 zł
- Centralny Odkurzacz 300,00 zł
- Szambo przydomowe 200,00 zł
- Dodatkowy egzemplarz projektu 150,00 zł