Dane techniczne
- Powierzchnia użytkowa 202.09 m²
- Powierzchnia zabudowy 236.27 m²
- Kubatura 868.00 m³
- Kąt nachylenia dachu 45.00°
- Powierzchnia dachu 275.00 m²
- Wysokość budynku 9.72 m
- Min. wymiary działki 22.20x19.80 m
- Garaż 50.62 m²
- Pracownia LK & Projekt
Technologia budowy
- Ławy fundamentowe: żelbetowe
- Ściany fundamentowe: betonowe
- Ściany zewnętrzne: z cegły kratówki K3 o gr.38 cm, ocieplone styropianem gr.12 cm
- Ściany wewnętrzne: z cegły kratówki gr.25, 12 cm
- Strop: żelbetowy
- Konstrukcja dachu: drewniana docieplona wełną mineralną gr. 17 cm
- Pokrycie dachu: dachówką ceramiczną
- Elewacje: wykończone tynkiem akrylowym, cokoły obłożone płytkami klinkierowymi
- Okna i drzwi balkonowe: PVC
- Sposób ogrzewania: kocioł na gaz
- Wentylacja: grawitacyjna
- Koszt orientacyjny (bez Vat): 532 108.00 zł.
Opis
Dom jednorodzinny, parterowy, z poddaszem użytkowym, podpiwniczony, z jednostanowiskowym garażem.
Rzuty
PIWNICA
Piwnica
1. Hall 7.20m
2. Pomieszczenie gospodarcze 9.28m
3. Garaż 50.62m
4. Kotłownia 14.89m
5. Pralnia 26.97m
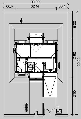
PARTER
Parter
1. Sień 9.34m
2. Hall 9.19m
3. Łazienka 14.89m
4. Kuchnia 16.83m
5. Pokój dzienny 38.38m
6. Sypialnia 20.58m
PODDASZE
Poddasze
1. Hall (7.19) 7.19m
2. Łazienka (14.96) 12.12m
3. Garderoba 3 (9.28) 7.97m
4. Sypialnia (17.64) 14.50m
5. Sypialnia 2 (29.48) 25.55m
6. Sypialnia 3 (29.48) 25.55m
Rzuty
PIWNICA
Piwnica
1. Hall 7.20m
2. Pomieszczenie gospodarcze 9.28m
3. Garaż 50.62m
4. Kotłownia 14.89m
5. Pralnia 26.97m
PARTER
Parter
1. Sień 9.34m
2. Hall 9.19m
3. Łazienka 14.89m
4. Kuchnia 16.83m
5. Pokój dzienny 38.38m
6. Sypialnia 20.58m
PODDASZE
Poddasze
1. Hall (7.19) 7.19m
2. Łazienka (14.96) 12.12m
3. Garderoba 3 (9.28) 7.97m
4. Sypialnia (17.64) 14.50m
5. Sypialnia 2 (29.48) 25.55m
6. Sypialnia 3 (29.48) 25.55m
Dbamy o swoich Klientów, jak nikt inny!
Do każdego projektu zakupionego za pośrednictwem serwisu kreoDOM.pl otrzymasz książeczkę z rabatami na zakupy w firmach Komfort, Fachowiec, Domino Łazienki, Komandor, Witek Home i innych. Książeczka na pewno okaże się przydatna podczas urządzania Twojego wymarzonego domu!
Książeczka z rabatami do takich firm jak: Komfort, Domino Łazienki, Fachowiec, Vox, Komandor, Witek Home i innych
Gwarancja
bezpiecznych zakupów
Dodatkowe pakiety projektowe
- Kosztorys inwestorski cena ustalana indywidualnie
- Kolektory słoneczne cena ustalana indywidualnie
- Kominek z DGP cena ustalana indywidualnie
- Wentylacja mechaniczna z rekuperacją cena ustalana indywidualnie
- Pompa ciepła cena ustalana indywidualnie