Ściany zewnętrzne 2-warstwowe: Beton komórkowy ( 24cm) / Pustak ceramiczny (25cm) + styropian 20cm Uściany < 0,20 W/(m2*K) – warunek spełniony.
Ławy fundamentowe tradycyjne: Ściany fundamentowe betonowe gr.24(25cm) z bloczków betonowych lub wylewane.
Stropy: płyta żelbetowa. Zamiennie można zastosować strop gęstożeberkowy typu TERIVA .
Konstrukcja dachu: tradycyjna drewniana, pokrycie dachu z dachówki ceramicznej.
Elewacje: pokryte tynkiem strukturalnym cienkowarstwowym.
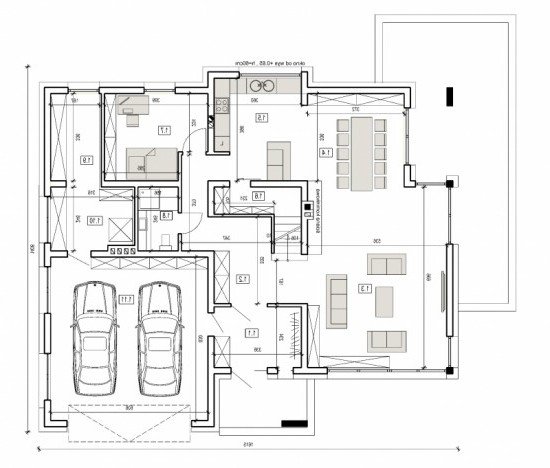
Projekt willi miejskiej o architekturze współczesnej. Parter domu tworzy otwartą przestrzeń na którą składa sie duży salon i kuchnia z jadalnią. Kuchnia w stylu nowoczesnym z miejscem na wolnostojącą "wyspę". Z jadalni jest wyjście na zadaszony taras. Piętro domu ma charakter strefy nocnej, w skład której wchodzą trzy sypialnie. Dom posiada wbudowany garaż na dwa samochody osobowe. Projekt z garażem jednostanowiskowym jest dostępny pod symbolem AN 006.
Energooszczędność:
Wersja standardowa:
Projekt spełnia wymagania cieplne dla nowo projektowanych domów określone w WT2008 (Rozporządzenie Ministra Infrastruktury dotyczące warunków technicznych, jakim powinny odpowiadać budynki i ich usytuowanie). Charakterystyka energetyczna w granicach 120 [kWh/m2/rok].
Wersja energooszczędna:
Projekt dostępny w wersji energooszczędnej .Czas realizacji zamówienia 10dni.
Charakterystyka energetyczna w granicach 75 [kWh/m2/rok].
Projekt w tej wersji posiada instalację wentylacji z odzyskiem ciepła oraz zmodyfikowane grubości izolacji fundamentów, podłóg, ścian, stropów i dachu.
1.1 Przedsionek 7.7
1.2 Hall 13.20
1.3 Pokój dzienny 37.0
1.4 Jadalnia 12.30
1.5 Kuchnia 13.0
1.6 Spiżarnia 1.4
1.7 Gabinet 12.0
1.8 Łazienka 3.7
1.9 Pom.gosp. 6.8
1.10 Pom.gosp. 7.4
1.11 Garaż 2 st. 37.90