Ściany zewnętrzne 2-warstwowe : Beton komórkowy ( 24cm) / Pustak ceramiczny (25cm) + styropian 20cm Uściany < 0,20 W/(m2*K) – warunek spełniony.
Ławy fundamentowe tradycyjne. Ściany fundamentowe betonowe gr.24(25cm) z bloczków betonowych lub wylewane.
Stropy - płyta żelbetowa . Zamiennie można zastosować strop gęstożeberkowy typu TERIVA .
Konstrukcja dachu - tradycyjna drewniana , pokrycie dachu z dachówki ceramicznej.
Elewacje - pokryte tynkiem strukturalnym cienkowarstwowym.
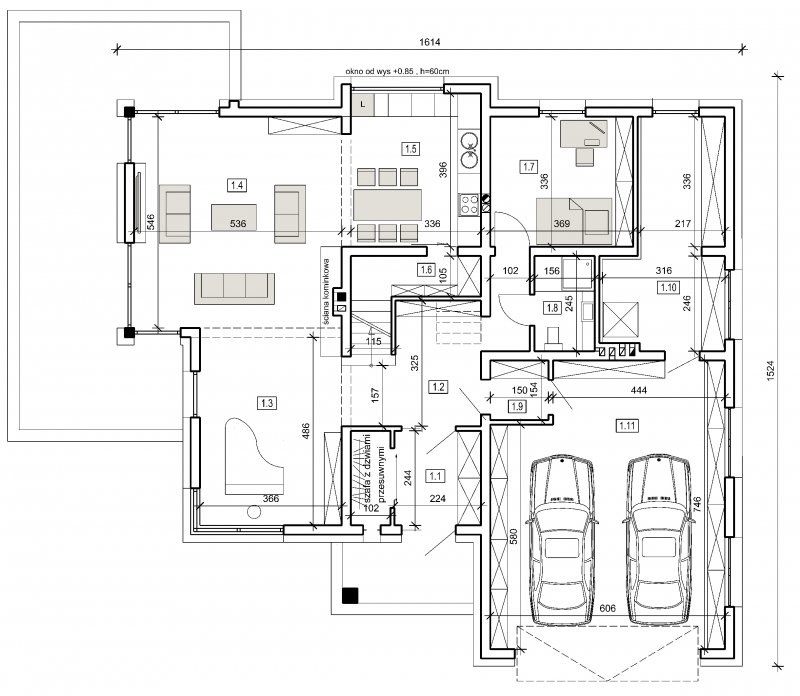
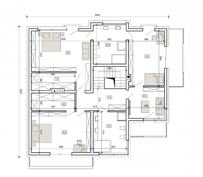
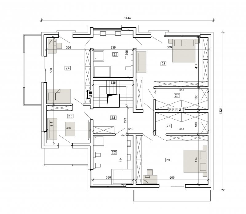
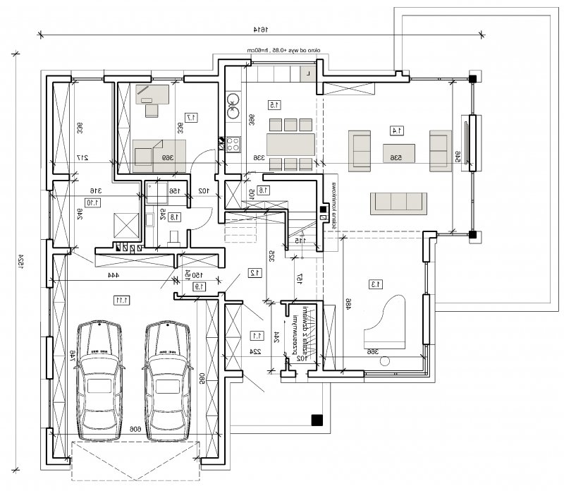
Dom piętrowy w stylu willi miejskiej o współczesnym wyglądzie. Na parterze kuchnia z jadalnią i 2-częściowy salon ( o powierzchni 45m2) tworzą otwartą przestrzeń, kominek znajdujący się w centralnym miejscu domu można wykonać w stylu nowoczesnym. Schody prowadzące na piętro są bardzo wygodne, zaprojektowane jako 3-biegowe ( bez zabiegów ). Na piętrze znajdują się 3 sypianie z własnymi garderobami ( w tym jedna z sypialń posiada prywatną łazienkę i wyjście na zadaszony balkon). Dom posiada wbudowany, wygodny garaż na 2 samochody osobowe o szerokości 6.06m.
Energooszczędność:
Wersja standardowa:
Projekt spełnia wymagania cieplne dla nowo projektowanych domów określone w wt2008 ( rozporządzenie ministra infrastruktury dotyczące "warunków technicznych ,jakim powinny odpowiadać budynki i ich usytuowanie )
charakterystyka energetyczna w granicach 120 [kwh/m2/rok]
Wersja energooszczędna:
Projekt dostępny w wersji energooszczędnej .czas realizacji zamówienia 10dni.
charakterystyka energetyczna w granicach 75 [kwh/m2/rok]
projekt w tej wersji posiada instalację wentylacji z odzyskiem ciepła oraz zmodyfikowane grubości izolacji fundamentów,podłóg,ścian, stropów i dachu.
Parter
1.1 Przedsionek z garderobą 8.0
1.2 Hall 11.5
1.3/1/4 Salon 45.20
1.5 Kuchnia 13.1
1.6 Spiżarnia 1.3
1.7 Pokój 12.2
1.8 Łazienka 3.7
1.9 Przedsionek 2.2
1.10 Pom. gospodarcze 14.8
1.11 Garaż 2 st. 41.8
Razem p.u. parteru bez garażu 112
z garażem 153.8