Ściany zewnętrzne 2-warstwowe : Beton komórkowy ( 24cm) / Pustak ceramiczny (25cm) + styropian 20cm Uściany < 0,20 W/(m2*K) – warunek spełniony.
Ławy fundamentowe tradycyjne. Ściany fundamentowe betonowe gr.24(25cm) z bloczków betonowych lub wylewane.
Stropy - płyta żelbetowa . Zamiennie można zastosować strop gęstożeberkowy typu TERIVA .
Konstrukcja dachu - tradycyjna drewniana , pokrycie dachu z dachówki ceramicznej.
Elewacje - pokryte tynkiem strukturalnym cienkowarstwowym.
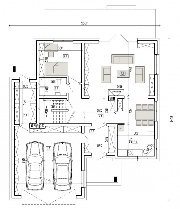
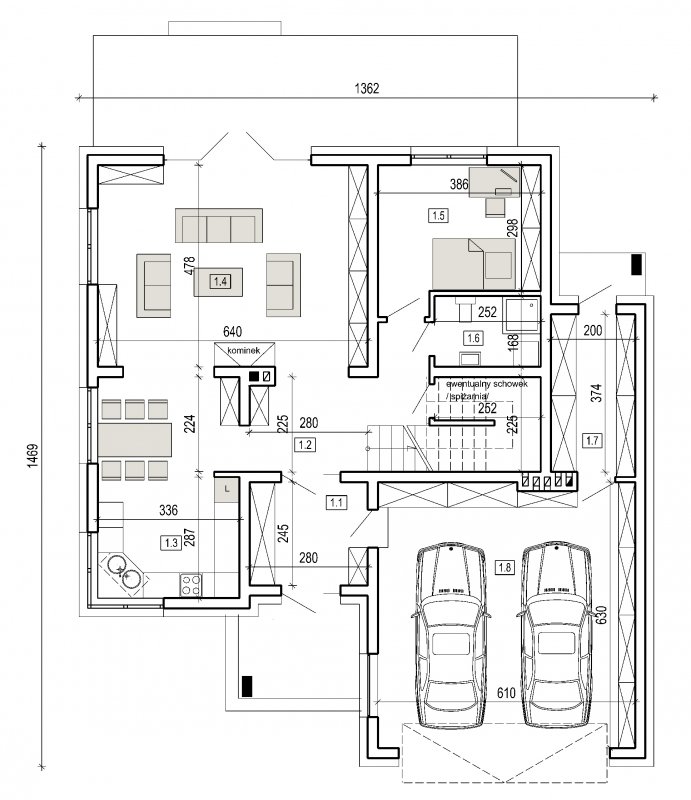
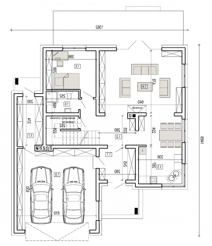
Dom piętrowy w stylu willi miejskiej o współczesnym wyglądzie. Na parterze kuchnia z jadalnią i salon tworzą otwartą przestrzeń, z salonu znajduje się wyjście na duży, zadaszony taras. Schody prowadzące na piętro zostały zaprojektowane jako 2-biegowe w stylu nowoczesnym. Na piętrze znajdują się 4 sypialnie. Dom posiada wbudowany, wygodny garaż na 2 samochody osobowe o szerokości 6.10m.
Energooszczędność:
Wersja standardowa:
Projekt spełnia wymagania cieplne dla nowo projektowanych domów określone w wt2008 ( rozporządzenie ministra infrastruktury dotyczące "warunków technicznych ,jakim powinny odpowiadać budynki i ich usytuowanie)
charakterystyka energetyczna w granicach 120 [kwh/m2/rok]
Wersja energooszczędna:
Projekt dostępny w wersji energooszczędnej .czas realizacji zamówienia 10dni.
charakterystyka energetyczna w granicach 75 [kwh/m2/rok]
projekt w tej wersji posiada instalację wentylacji z odzyskiem ciepła oraz zmodyfikowane grubości izolacji fundamentów,podłóg ,ścian , stropów i dachu.
1.1 Przedsionek 5.52
1.2 Hall 11.24
1.3 Kuchnia 17.61
1.4 Salon 30.59
1.5 Pokój 12.26
1.6 Lazienka 4.23
1.7 Spizarnia 3.25
1.8 Pom. gosp. 7.66
1.9 Garaz 2 st. 38.19