Ściany zewnętrzne 2-warstwowe : Beton komórkowy ( 24cm) / Pustak ceramiczny (25cm) + styropian 20cm Uściany < 0,20 W/(m2*K) – warunek spełniony.
Ławy fundamentowe tradycyjne. Ściany fundamentowe betonowe gr.24(25cm) z bloczków betonowych lub wylewane.
Stropy - płyta żelbetowa . Zamiennie można zastosować strop gęstożeberkowy typu TERIVA .
Konstrukcja dachu - tradycyjna drewniana , pokrycie dachu z dachówki ceramicznej.
Elewacje - pokryte tynkiem strukturalnym cienkowarstwowym.
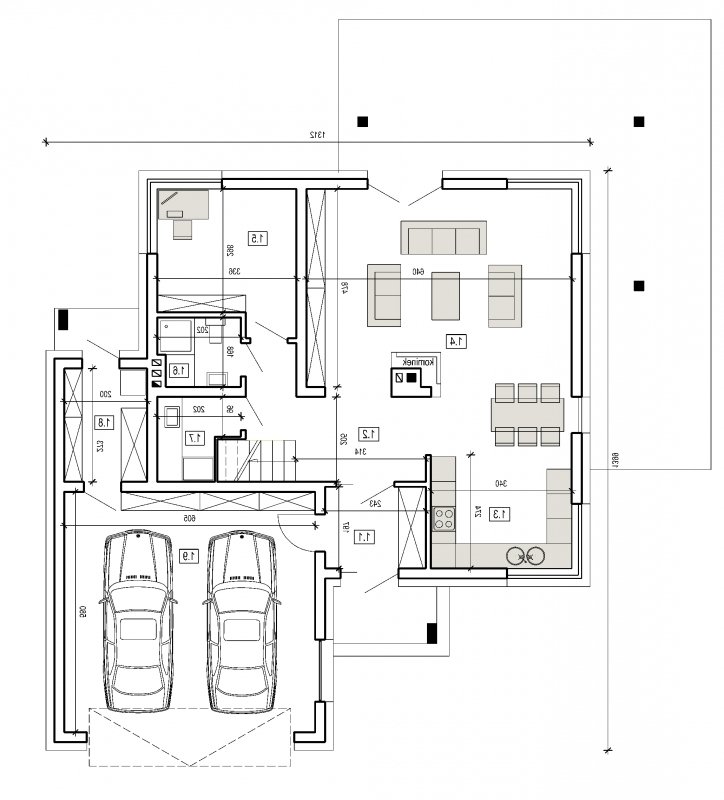
Dom piętrowy w stylu willi miejskiej o współczesnym wyglądzie. Na parterze kuchnia, jadalnia i salon tworzą otwartą przestrzeń. W kuchni można zamontować tzw. "wyspę" kuchenną, kominek znajdujący się w centralnym miejscu domu można wykonać w stylu nowoczesnym. Schody prowadzące na piętro są bardzo wygodne, zaprojektowane jako 2-biegowe ( bez zabiegów ). Na piętrze znajdują się 3 sypianie z własnymi garderobami ( w tym jedna z sypialń posiada prywatną łazienkę i wyjście na zadaszony balkon). Dom posiada wbudowany garaż na 2 samochody osobowe o szerokości 6.05m.
Energooszczędność:
Wersja standardowa:
Projekt spełnia wymagania cieplne dla nowo projektowanych domów określone w wt2008 ( rozporządzenie ministra infrastruktury dotyczące "warunków technicznych, jakim powinny odpowiadać budynki i ich usytuowanie )
charakterystyka energetyczna w granicach 120 [kwh/m2/rok]
Wersja energooszczędna:
Projekt dostępny w wersji energooszczędnej .czas realizacji zamówienia 10dni.
charakterystyka energetyczna w granicach 75 [kwh/m2/rok]
projekt w tej wersji posiada instalację wentylacji z odzyskiem ciepła oraz zmodyfikowane grubości izolacji fundamentów,podłóg,ścian, stropów i dachu.
1.1 Przedsionek 4.6
1.2 Hall 9.00
1.3 Kuchnia 14.00
1.4 Pokój dzienny 30.10
1.5 Gabinet 10.55
1.6 Łazienka 3.10
1.7 Pralnia 2.50
1.8 Pom.gospodarcze 5.40
1.9 Garaż 2st. 34.65
P.U. parteru bez garazu i pom. gosp. 79.25
P.U. ogólem 113.9