Dane techniczne
- Powierzchnia użytkowa 324.40 m²
- Powierzchnia zabudowy 295.90 m²
- Kubatura 1990.00 m³
- Kąt nachylenia dachu 2.00°
- Powierzchnia dachu 199.00 m²
- Wysokość budynku 7.87 m
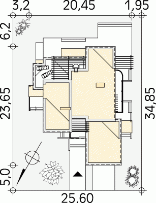
- Min. wymiary działki 25.60x34.85 m
- Garaż 40.30 m²
- Pracownia MTM Styl
Technologia budowy
Ściany: 2-warstwowe - pustak ceramiczny + styropian, Stropy: żelbetowe, wylewane, Dach: papa - dach płaski (spadek ok 2-3%)
Koszty budowy (cena netto bez instalacji):
- fundamenty: 139925.00 zł
- stan-surowy: 422140.00 zł
- stolarka: 54752.00 zł
- koszt całkowity: 632033.00 zł
Opis
Dom jednorodzinny z piwnicą i dwustanowiskowym garażem przewidziany dla wieloosobowej rodziny. Nowoczesna bryła z płaskimi dachami. Na parterze zaprojektowano pokój dzienny, bibliotekę, kuchnię z jadalnią i spiżarnią, oranżerię i gabinet. Na piętrze znajdują się trzy sypialnie, trzy łazienki, pralnia oraz dwa obszerne tarasy i balkon.
Dbamy o swoich Klientów, jak nikt inny!
Do każdego projektu zakupionego za pośrednictwem serwisu kreoDOM.pl otrzymasz książeczkę z rabatami na zakupy w firmach Komfort, Fachowiec, Domino Łazienki, Komandor, Witek Home i innych. Książeczka na pewno okaże się przydatna podczas urządzania Twojego wymarzonego domu!
Książeczka z rabatami do takich firm jak: Komfort, Domino Łazienki, Fachowiec, Vox, Komandor, Witek Home i innych
Gwarancja
bezpiecznych zakupów
Dodatkowe pakiety projektowe
- Kosztorys inwestorski 800.00
- Wentylacja mechaniczna z rekuperacją 750