Dane techniczne
- Powierzchnia użytkowa 330.50 m²
- Powierzchnia zabudowy 334.20 m²
- Kubatura 1367.70 m³
- Kąt nachylenia dachu 5.00°
- Powierzchnia dachu 143.00 m²
- Wysokość budynku 7.55 m
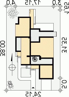
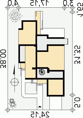
- Min. wymiary działki 24.15x38.00 m
- Garaż 34.80 m²
- Pracownia MTM Styl
Technologia budowy
Ściany: 2-warstwowe - pustak ceramiczny + styropian, Stropy: żelbetowe, wylewane, Dach: papa - dach płaski (spadek ok 2-3%)
Koszty budowy (cena netto bez instalacji):
- fundamenty: 73918.00 zł
- stan-surowy: 366829.00 zł
- stolarka: 49496.00 zł
- koszt całkowity: 541565.00 zł
Opis
Duży, reprezentacyjny dom w duchu wczesnego modernizmu. Wewnętrzna przestrzeń parteru podzielona funkcjonalnie na dwie części mieszkalne z oddzielnymi wejściami (możliwość zaadaptowania mniejszej części na gabinet lekarski). Na piętrze trzy przestronne sypialnie w sąsiedztwie dużych tarasów.
Dbamy o swoich Klientów, jak nikt inny!
Do każdego projektu zakupionego za pośrednictwem serwisu kreoDOM.pl otrzymasz książeczkę z rabatami na zakupy w firmach Komfort, Fachowiec, Domino Łazienki, Komandor, Witek Home i innych. Książeczka na pewno okaże się przydatna podczas urządzania Twojego wymarzonego domu!
Książeczka z rabatami do takich firm jak: Komfort, Domino Łazienki, Fachowiec, Vox, Komandor, Witek Home i innych
Gwarancja
bezpiecznych zakupów
Dodatkowe pakiety projektowe
- Kosztorys inwestorski 800.00
- Wentylacja mechaniczna z rekuperacją 750