Dane techniczne
- Powierzchnia użytkowa 121.00 m²
- Powierzchnia zabudowy 86.90 m²
- Kubatura 661.40 m³
- Kąt nachylenia dachu 42.00°
- Wysokość budynku 7.23 m
- Min. wymiary działki 20.50x17.50 m
- Garaż 21.40 m²
- Pracownia MOJ-DOM
Technologia budowy
Ściany:
Projekt dostępny również w technologii bala drewnianego.
Fundamenty: żelbetowe, wylewane
Ściany zewnętrzne: szkieletowe, ocieplone wełną mineralną
Stropy:
Belkowy, drewniany, zamknięty
Wykończenie:
Schody: drewniane
Dach
Pokrycie dachu: dachówka cementowa
Opis
Budynek jednorodzinny, parterowy, z poddaszem mieszkalnym, podpiwniczony, 5 pokoi, kuchnia.garaż
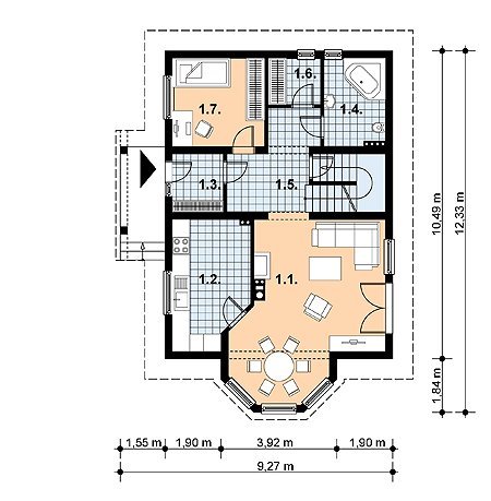
Rzuty
1. pokój dzienny27.3 m2
2. kuchnia11.4 m2
3. wiatrołap3.8 m2
4. łazienka6.6 m2
5. hall11.4 m2
6. pom.gosp.3.0 m2
7. sypialnia10.2 m2
1. sypialnia17.5 m2
2. sypialnia15.1 m2
3. komunikacja7.9 m2
4. łazienka8.6 m2
5. sypialnia17.5 m2
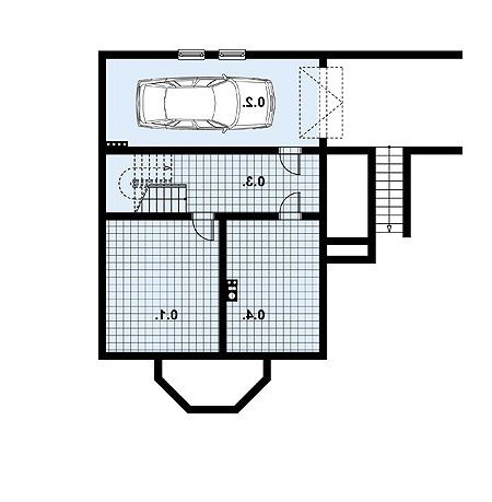
1. pom.gospodarcze16.8 m2
2. garaż21.4 m2
3. komunikacja15.2 m2
4. kotłownia13.7 m2
Rzuty
1. pokój dzienny27.3 m2
2. kuchnia11.4 m2
3. wiatrołap3.8 m2
4. łazienka6.6 m2
5. hall11.4 m2
6. pom.gosp.3.0 m2
7. sypialnia10.2 m2
1. sypialnia17.5 m2
2. sypialnia15.1 m2
3. komunikacja7.9 m2
4. łazienka8.6 m2
5. sypialnia17.5 m2
1. pom.gospodarcze16.8 m2
2. garaż21.4 m2
3. komunikacja15.2 m2
4. kotłownia13.7 m2
Dbamy o swoich Klientów, jak nikt inny!
Do każdego projektu zakupionego za pośrednictwem serwisu kreoDOM.pl otrzymasz książeczkę z rabatami na zakupy w firmach Komfort, Fachowiec, Domino Łazienki, Komandor, Witek Home i innych. Książeczka na pewno okaże się przydatna podczas urządzania Twojego wymarzonego domu!
Książeczka z rabatami do takich firm jak: Komfort, Domino Łazienki, Fachowiec, Vox, Komandor, Witek Home i innych
Gwarancja
bezpiecznych zakupów
Dodatkowe pakiety projektowe