Dane techniczne
- Powierzchnia użytkowa 114.30 m²
- Powierzchnia zabudowy 81.70 m²
- Kubatura 606.10 m³
- Kąt nachylenia dachu 40.00°
- Wysokość budynku 7.10 m
- Min. wymiary działki 21.00x18.50 m
- Garaż 25.50 m²
- Pracownia MOJ-DOM
Technologia budowy
Fundamenty: żelbetowe, wylewane
Ściany zewnętrzne: szkieletowe, ocieplone wełną mineralną
Strop: belkowy, drewniany, zamknięty
Schody: drewniane
Pokrycie dachu: blachodachówka
Opis
Budynek jednorodzinny, parterowy, z poddaszem mieszkalnym, podpiwniczony, 5 pokoi, kuchnia, garaż
Rzuty
1. Garaż25.5 m2
2. Komunikacja4.8 m2
1. Wiatrołap2.9 m2
2. Łazienka6.2 m2
3. Garderoba3.0 m2
4. Sypialnia11.8 m2
5. Pokój dzienny25.0 m2
6. Hall10.6 m2
7. Kuchnia10.5 m2
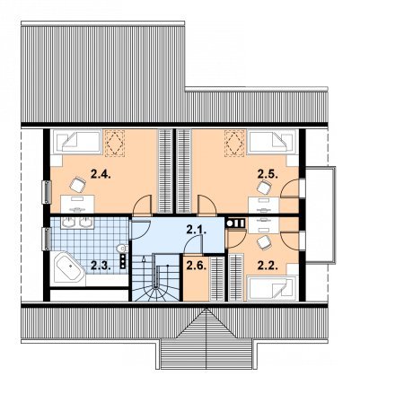
1. Hall7.4 m2
2. Sypialnia10.8 m2
3. Łazienka8.6 m2
4. Sypialnia18.6 m2
5. Sypialnia18.6 m2
6. Pomieszczenie gosp.3.4 m2
Rzuty
1. Garaż25.5 m2
2. Komunikacja4.8 m2
1. Wiatrołap2.9 m2
2. Łazienka6.2 m2
3. Garderoba3.0 m2
4. Sypialnia11.8 m2
5. Pokój dzienny25.0 m2
6. Hall10.6 m2
7. Kuchnia10.5 m2
1. Hall7.4 m2
2. Sypialnia10.8 m2
3. Łazienka8.6 m2
4. Sypialnia18.6 m2
5. Sypialnia18.6 m2
6. Pomieszczenie gosp.3.4 m2
Dbamy o swoich Klientów, jak nikt inny!
Do każdego projektu zakupionego za pośrednictwem serwisu kreoDOM.pl otrzymasz książeczkę z rabatami na zakupy w firmach Komfort, Fachowiec, Domino Łazienki, Komandor, Witek Home i innych. Książeczka na pewno okaże się przydatna podczas urządzania Twojego wymarzonego domu!
Książeczka z rabatami do takich firm jak: Komfort, Domino Łazienki, Fachowiec, Vox, Komandor, Witek Home i innych
Gwarancja
bezpiecznych zakupów
Dodatkowe pakiety projektowe