Dane techniczne
- Powierzchnia użytkowa 139.50 m²
- Powierzchnia zabudowy 111.20 m²
- Kubatura 701.20 m³
- Kąt nachylenia dachu 40.00°
- Wysokość budynku 7.92 m
- Min. wymiary działki 21.00x18.00 m
- Garaż 19.80 m²
- Pracownia MOJ-DOM
Technologia budowy
Ściany:
Projekt dostępny również w technologii bala drewnianego.
Fundamenty: żelbetowe, wylewane
Ściany zewnętrzne: szkieletowe, ocieplone wełną mineralną
Stropy:
Strop: belkowy, drewniany, zamknięty
Wykończenie:
Schody: drewniane
Dach
Pokrycie dachu: blachodachówka
Opis
Budynek jednorodzinny, parterowy, z poddaszem mieszkalnym, niepodpiwniczony, 5 pokoi, kuchnia,garaż
Rzuty
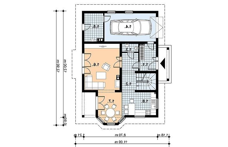
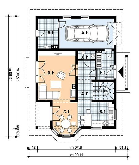
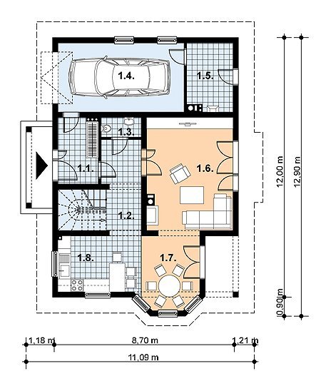
1. wiatrołap6.1 m2
2. hall10.4 m2
3. wc2.0 m2
4. garaż19.8 m2
5. kotłownia7.2 m2
6. pokój dzienny22.1 m2
7. jadalnia10.2 m2
8. kuchnia10.3 m2
1. hall10.5 m2
2. łazienka7.0 m2
3. pralnia9.2 m2
4. sypialnia17.7 m2
5. sypialnia17.0 m2
6. sypialnia16.1 m2
7. garderoba11.6 m2
Rzuty
1. wiatrołap6.1 m2
2. hall10.4 m2
3. wc2.0 m2
4. garaż19.8 m2
5. kotłownia7.2 m2
6. pokój dzienny22.1 m2
7. jadalnia10.2 m2
8. kuchnia10.3 m2
1. hall10.5 m2
2. łazienka7.0 m2
3. pralnia9.2 m2
4. sypialnia17.7 m2
5. sypialnia17.0 m2
6. sypialnia16.1 m2
7. garderoba11.6 m2
Dbamy o swoich Klientów, jak nikt inny!
Do każdego projektu zakupionego za pośrednictwem serwisu kreoDOM.pl otrzymasz książeczkę z rabatami na zakupy w firmach Komfort, Fachowiec, Domino Łazienki, Komandor, Witek Home i innych. Książeczka na pewno okaże się przydatna podczas urządzania Twojego wymarzonego domu!
Książeczka z rabatami do takich firm jak: Komfort, Domino Łazienki, Fachowiec, Vox, Komandor, Witek Home i innych
Gwarancja
bezpiecznych zakupów
Dodatkowe pakiety projektowe