Dane techniczne
- Powierzchnia użytkowa 134.60 m²
- Powierzchnia zabudowy 102.10 m²
- Kubatura 674.70 m³
- Kąt nachylenia dachu 40.00°
- Wysokość budynku 7.47 m
- Min. wymiary działki 21.00x20.50 m
- Garaż 18.20 m²
- Pracownia MOJ-DOM
Technologia budowy
Ściany;
Fundamenty: żelbetowe, wylewane
Ściany zewnętrzne: szkieletowe, ocieplone wełną mineralną
Stropy:
Belkowy, drewniany, otwarty
Wykończenie:
Schody: drewniane
Dach:
Pokrycie dachu: blachodachówka
Opis
Budynek jednorodzinny, parterowy, z poddaszem mieszkalnym, niepodpiwniczony, 4 pokoje, kuchnia, garaż, kotłownia
Rzuty
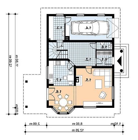
1. wiatrołap4.0 m2
2. hall13.7 m2
3. kotłownia6.8 m2
4. garaż18.2 m2
5. pokój dzienny22.8 m2
6. jadalnia10.2 m2
7. kuchnia10.0 m2
8. WC2.0 m2
1. hall9.9 m2
2. łazienka9.9 m2
3. sypialnia23.0 m2
4. sypialnia23.0 m2
5. sypialnia14.6 m2
6. garderoba5.1 m2
Rzuty
1. wiatrołap4.0 m2
2. hall13.7 m2
3. kotłownia6.8 m2
4. garaż18.2 m2
5. pokój dzienny22.8 m2
6. jadalnia10.2 m2
7. kuchnia10.0 m2
8. WC2.0 m2
1. hall9.9 m2
2. łazienka9.9 m2
3. sypialnia23.0 m2
4. sypialnia23.0 m2
5. sypialnia14.6 m2
6. garderoba5.1 m2
Dbamy o swoich Klientów, jak nikt inny!
Do każdego projektu zakupionego za pośrednictwem serwisu kreoDOM.pl otrzymasz książeczkę z rabatami na zakupy w firmach Komfort, Fachowiec, Domino Łazienki, Komandor, Witek Home i innych. Książeczka na pewno okaże się przydatna podczas urządzania Twojego wymarzonego domu!
Książeczka z rabatami do takich firm jak: Komfort, Domino Łazienki, Fachowiec, Vox, Komandor, Witek Home i innych
Gwarancja
bezpiecznych zakupów
Dodatkowe pakiety projektowe