Dane techniczne
- Powierzchnia użytkowa 293.91 m²
- Powierzchnia zabudowy 388.50 m²
- Kubatura 1147.50 m³
- Kąt nachylenia dachu 35.00°
- Powierzchnia dachu 270.00 m²
- Wysokość budynku 9.52 m
- Min. wymiary działki 30.95x31.00 m
- Garaż 65.94 m²
- Pracownia LK & Projekt
Technologia budowy
- Wentylacja: mechaniczna z rekuperacją
- Sposób ogrzewania: kocioł na gaz, wspomaganie cwu kolektorami słonecznymi
- Okna i drzwi balkonowe: drewniane
- Elewacje: wykończone tynkiem silikonowym, płytami HPL, ciętym trawertynem, okładziną kamienną
- Ściany zewnętrzne: z pustaków ceramicznych Porotherm Profi o gr.30 cm firmy Wienerberger ocieplone styropianem Gold Fasada o gr.20 cm firmy Termo Organika oraz wełną mineralną Rocton firmy Rockwool o gr.15 cm
- Pokrycie dachu: dachówką ceramiczną Koramic firmy Wienerberger, Płaska Actua 10, stropodach: izolacja przeciwwodna, ocieplenie, żwir
- Konstrukcja dachu: drewniana docieplona wełną mineralną gr. 30 cm, stropodach odwrócony
- Ławy fundamentowe: żelbetowe
- Ściany fundamentowe: z pustaków szalunkowych o gr.30 cm, ocieplone styropianem Gold fundament o gr.20 cm
- Strop: żelbetowy
- Ściany wewnętrzne: z pustaków ceramicznych Porotherm P+W gr. 25, 11.5 cm firmy Wienerberger
- Koszt orientacyjny (bez Vat): 1 482 708.00 zł.
Opis
Projekt domu piętrowego przeznaczonego dla rodziny 4-6 osobowej. Posiada garaż z czteroma miejscami postojowymi.
Rzuty
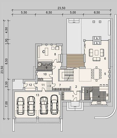
1.Pokój rekreacyjny35,06 m²
2.Kotłownia12,55 m²
3.Pralnia13,00 m²
4.Pomieszczenie gospodarcze14,12 m²
- Sypialnia 218,56 m²
- Łazienka 211,34 m²
- Garderoba 210,86 m²
- Sypialnia 322,68 m²
Rzuty
1.Pokój rekreacyjny35,06 m²
2.Kotłownia12,55 m²
3.Pralnia13,00 m²
4.Pomieszczenie gospodarcze14,12 m²
- Sypialnia 218,56 m²
- Łazienka 211,34 m²
- Garderoba 210,86 m²
- Sypialnia 322,68 m²
Dbamy o swoich Klientów, jak nikt inny!
Do każdego projektu zakupionego za pośrednictwem serwisu kreoDOM.pl otrzymasz książeczkę z rabatami na zakupy w firmach Komfort, Fachowiec, Domino Łazienki, Komandor, Witek Home i innych. Książeczka na pewno okaże się przydatna podczas urządzania Twojego wymarzonego domu!
Książeczka z rabatami do takich firm jak: Komfort, Domino Łazienki, Fachowiec, Vox, Komandor, Witek Home i innych
Gwarancja
bezpiecznych zakupów
Dodatkowe pakiety projektowe
- Kosztorys inwestorski cena ustalana indywidualnie
- Kolektory słoneczne cena ustalana indywidualnie
- Kominek z DGP cena ustalana indywidualnie
- Wentylacja mechaniczna z rekuperacją cena ustalana indywidualnie
- Pompa ciepła cena ustalana indywidualnie