Dane techniczne
- Powierzchnia użytkowa 286.18 m²
- Powierzchnia zabudowy 343.81 m²
- Kubatura 1302.30 m³
- Kąt nachylenia dachu 25.00°
- Powierzchnia dachu 425.00 m²
- Wysokość budynku 10.97 m
- Min. wymiary działki 27.80x33.50 m
- Garaż 85.78 m²
- Pracownia LK & Projekt
Technologia budowy
- Sposób ogrzewania: pompa ciepła, podgrzewanie CWU wspomagane kolektorami słonecznymi
- Okna i drzwi balkonowe: drewniane, aluminiowe
- Elewacje: wykończone tynkiem silikonowym, kamieniem naturalnym ciętym, deskami cedrowymi
- Pokrycie dachu: dachówka ceramiczną Koramic firmy Wienerberger
- Konstrukcja dachu: drewniana, krokwiowa, ocieplona wełną mineralną firmy Rockwool o łącznej grubości 30 cm
- Strop: żelbetowy
- Ściany wewnętrzne: z pustaków ceramicznych Heluz Family o gr.25 cm, 11,5 cm
- Ściany zewnętrzne: z pustaków ceramicznych Heluz Family 2 in1 o gr. 50 cm, wypełnione izolacją polistyrenową
- Ławy fundamentowe: płyta żelbetowa, ocieplona styropianem ekstrudowanym o gr.20 cm
- Wentylacja: mechaniczna z rekuperacją
- Koszt orientacyjny (bez Vat): 1 058 198.00 zł.
Opis
Projekt LK&1121 to nowoczesna i elegancka w swej strukturze bryła. Wysokie przeszklenia pozwalają na wyjątkowe oświetlenie przestronnych pomieszczeń. Elementem niestandardowym jest sposób wykończenia budynku, który nadaje mu charakteru, a z drugiej strony ciepła.
Plusem projektu jest oddzielenie strefy dziennej z salonem, kuchnią, jadalnią i gabinetem, od strefy nocnej z trzema sypialniami i dwoma łazienkami. Dodatkowym atutem jest również spory garaż mieszczący aż 4 stanowiska.
Rzuty
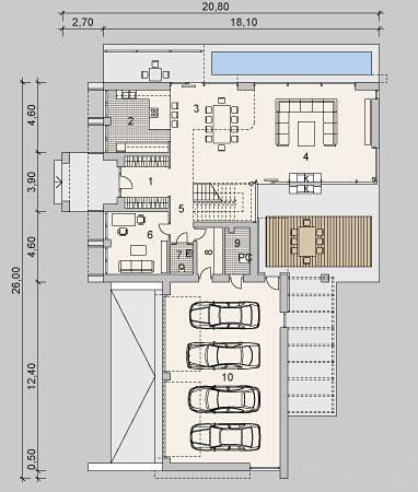
- użytkowa 134,62 m2
- Sień 9,72 m2
- Kuchnia 15,52 m2
- Jadalnia 32,20 m2
- Pokój dzienny 46,31 m2
- Hall 7,29 m2
- Gabinet 15,52 m2
- WC 2,81 m2
- Pomieszczenie gospodarcze 5,25 m2
- Kotłownia 4,90 m2
- Garaż 85,78 m2
- użytkowa 151,56 m2
- Hall 12,95 m2
- Pralnia 13,33 m2
- Sypialnia 18,13 m2
- Łazienka 9,50 m2
- Sypialnia 2 17,57 m2
- Pomieszczenie techniczne 4,08 m2
- Garderoba 24,97 m2
- Łazienka 2 14,85 m2
- Sypialnia 3 36,18 m2
Rzuty
- użytkowa 134,62 m2
- Sień 9,72 m2
- Kuchnia 15,52 m2
- Jadalnia 32,20 m2
- Pokój dzienny 46,31 m2
- Hall 7,29 m2
- Gabinet 15,52 m2
- WC 2,81 m2
- Pomieszczenie gospodarcze 5,25 m2
- Kotłownia 4,90 m2
- Garaż 85,78 m2
- użytkowa 151,56 m2
- Hall 12,95 m2
- Pralnia 13,33 m2
- Sypialnia 18,13 m2
- Łazienka 9,50 m2
- Sypialnia 2 17,57 m2
- Pomieszczenie techniczne 4,08 m2
- Garderoba 24,97 m2
- Łazienka 2 14,85 m2
- Sypialnia 3 36,18 m2
Dbamy o swoich Klientów, jak nikt inny!
Do każdego projektu zakupionego za pośrednictwem serwisu kreoDOM.pl otrzymasz książeczkę z rabatami na zakupy w firmach Komfort, Fachowiec, Domino Łazienki, Komandor, Witek Home i innych. Książeczka na pewno okaże się przydatna podczas urządzania Twojego wymarzonego domu!
Książeczka z rabatami do takich firm jak: Komfort, Domino Łazienki, Fachowiec, Vox, Komandor, Witek Home i innych
Gwarancja
bezpiecznych zakupów
Dodatkowe pakiety projektowe
- Kosztorys inwestorski cena ustalana indywidualnie
- Kolektory słoneczne cena ustalana indywidualnie
- Kominek z DGP cena ustalana indywidualnie
- Wentylacja mechaniczna z rekuperacją cena ustalana indywidualnie
- Pompa ciepła cena ustalana indywidualnie