Dane techniczne
- Powierzchnia użytkowa 350.90 m²
- Powierzchnia zabudowy 314.40 m²
- Kubatura 1378.60 m³
- Kąt nachylenia dachu 2.00°
- Powierzchnia dachu 396.30 m²
- Wysokość budynku 9.62 m
- Min. wymiary działki 22.00x45.00 m
- Garaż 51.48 m²
- Pracownia LK & Projekt
Technologia budowy
- Wentylacja: mechaniczna z rekuperacją
- Elewacje: wykończone tynkiem silikonowym, kamieniem naturalnym ciętym, stalą nierdzewną, blachą emaliowaną
- Okna i drzwi balkonowe: aluminiowe
- Sposób ogrzewania: pompa ciepła, wspomaganie cwu kolektorami słonecznymi
- Pokrycie dachu: warstwa żwiru płukanego
- Strop: żelbetowy
- Konstrukcja dachu: żelbetowa, wg. systemu firmy Bauder
- Ściany wewnętrzne: z pustaków ceramicznych Heluz Family o gr.25 cm, 11,5 cm
- Ściany fundamentowe: żelbetowe, wylewane, o gr.30 cm, ocieplone styropianem ekstrudowanym o gr.20 cm
- Ściany zewnętrzne: z pustaków ceramicznych Heluz Family o gr. 50 cm
- Ławy fundamentowe: żelbetowe, płyta fundamentowa żelbetowa
- Stan na kwartał: III 2014 zł.
- Roboty budowlane stanu zerowego: 183 116.38 zł.
- Stan surowy zadaszony: 334 762.78 zł.
- Stolarka: 293 028.12 zł.
- Roboty budowlane stanu wykończeniowego: 424 897.77 zł.
- Instalacje: 303 700.00 zł.
- Koszt budowy ogółem (bez VAT): 1 539 505.05 zł.
Opis
Reprezentacyjny dom, z podpiwniczeniem w nowoczesnym stylu.
Rzuty
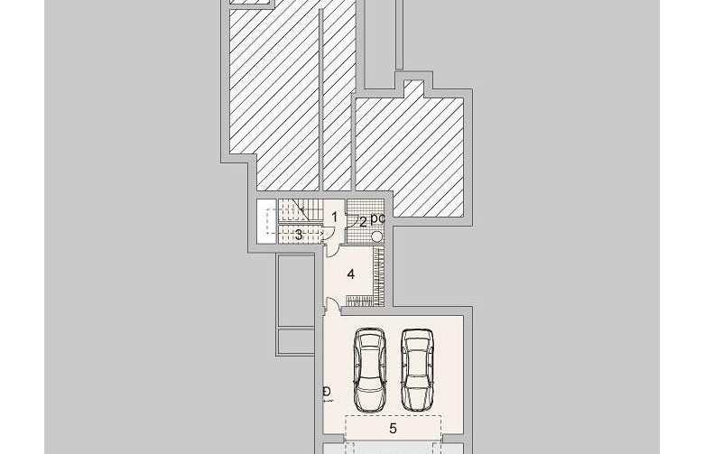
Piwnica
1. Hall 3.00m
2. Pomieszczenie pompy ciepła 5.20m
3. Schowek (2.45) 1.83m
4. Pomieszczenie gospodarcze 11.46m
5. Garaż 51.48m
Parter
1. Hall 21.28m
2. Spiżarka 2.86m
3. Kuchnia 15.80m
4. Jadalnia 28.32m
5. Pokój dzienny 39.27m
6. Korytarz 17.05m
7. Łazienka 7.35m
8. Gabinet 19.35m
9. Pokój rekreacyjny 19.35m
10. Fitness 18.66m
11. Pomieszczenie na sprzęt ogrodniczy 8.32m
- Hall 40,54 m2
- Sypialnia 17,23 m2
- Sypialnia 2 16,83 m2
- Garderoba 8,93 m2
- Łazienka 11,04 m2
- Garderoba 2 5,52 m2
- Pralnia z rekuperatorem 11,47 m2
- WC 2,29 m2
- Łazienka 2 12,53 m2
- Garderoba 3 12,93 m2
- Sypialnia 3 22,30 m2
Rzuty
Piwnica
1. Hall 3.00m
2. Pomieszczenie pompy ciepła 5.20m
3. Schowek (2.45) 1.83m
4. Pomieszczenie gospodarcze 11.46m
5. Garaż 51.48m
Parter
1. Hall 21.28m
2. Spiżarka 2.86m
3. Kuchnia 15.80m
4. Jadalnia 28.32m
5. Pokój dzienny 39.27m
6. Korytarz 17.05m
7. Łazienka 7.35m
8. Gabinet 19.35m
9. Pokój rekreacyjny 19.35m
10. Fitness 18.66m
11. Pomieszczenie na sprzęt ogrodniczy 8.32m
- Hall 40,54 m2
- Sypialnia 17,23 m2
- Sypialnia 2 16,83 m2
- Garderoba 8,93 m2
- Łazienka 11,04 m2
- Garderoba 2 5,52 m2
- Pralnia z rekuperatorem 11,47 m2
- WC 2,29 m2
- Łazienka 2 12,53 m2
- Garderoba 3 12,93 m2
- Sypialnia 3 22,30 m2
Dbamy o swoich Klientów, jak nikt inny!
Do każdego projektu zakupionego za pośrednictwem serwisu kreoDOM.pl otrzymasz książeczkę z rabatami na zakupy w firmach Komfort, Fachowiec, Domino Łazienki, Komandor, Witek Home i innych. Książeczka na pewno okaże się przydatna podczas urządzania Twojego wymarzonego domu!
Książeczka z rabatami do takich firm jak: Komfort, Domino Łazienki, Fachowiec, Vox, Komandor, Witek Home i innych
Gwarancja
bezpiecznych zakupów
Dodatkowe pakiety projektowe
- Kosztorys inwestorski cena ustalana indywidualnie
- Kolektory słoneczne cena ustalana indywidualnie
- Kominek z DGP cena ustalana indywidualnie
- Wentylacja mechaniczna z rekuperacją cena ustalana indywidualnie
- Pompa ciepła cena ustalana indywidualnie