Dane techniczne
- Powierzchnia użytkowa 357.00 m²
- Powierzchnia zabudowy 323.67 m²
- Kubatura 1209.00 m³
- Kąt nachylenia dachu 18.00°
- Powierzchnia dachu 200.00 m²
- Wysokość budynku 9.48 m
- Min. wymiary działki 29.05x26.15 m
- Garaż 41.75 m²
- Pracownia LK & Projekt
Technologia budowy
- Ściany wewnętrzne: z pustaków ceramicznych Porotherm 25 P+W oraz 11,5 P+W gr. 25, 11.5 firmy Wienerberger
- Strop: żelbetowy
- Konstrukcja dachu: drewniana, ocieplona wełną mineralną firmy Rockwool gr. 30cm oraz stropodach żelbetowy, ocieplony spadkowymi płytami z pianki poliuretanowej PIR gr. min 20cm fimy Bauder
- Sposób ogrzewania: kocioł na gaz, ogrzewanie podłogowe wspomagane grzejnikami tradycyjnymi
- Pokrycie dachu: blachą tytan-cynk oraz folią dachową wg rozwiązań firmy Bauder
- Okna i drzwi balkonowe: aluminiowe firmy Schücko
- Elewacje: wykończone tynkiem silikonowym, okładzina z płyt wapiennych
- Ściany zewnętrzne: z pustaków ceramicznych Porotherm 30 P+W gr.30cm firmy Winerberger, ocieplone styropianem gr. 20cm firmy Termo Organika oraz żelbetowe gr. 25cm ocieplone wełną mineralną Rockton gr. 20cm firmy Rockwool oraz styropianem gr. 25cm firmy Termo Organika
- Ławy fundamentowe: żelbetowe
- Wentylacja: grawitacyjna
- Koszt orientacyjny (bez Vat): 1 700 000.00 zł.
Opis
Nowoczesny, piętrowy dom jednorodzinny z dwustaniskowym garażem.
Rzuty
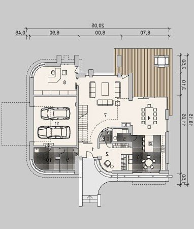
PARTER
Parter
1. Sień 5.67m
2. Garderoba 13.90m
3. Kuchnia 24.48m
4. Jadalnia 25.03m
5. Spiżarka 4.34m
6. WC 2.49m
7. Pokój dzienny 52.43m
8. Gabinet 23.46m
9. Serwerownia 6.83m
10. Kotłownia 10.89m
11. Garaż 41.75m
PIĘTRO
Piętro
1. Hall 31.74m
2. Łazienka 17.46m
3. Sypialnia 19.55m
4. Pokój dzienny 25.30m
5. Garderoba 16.38m
6. Sypialnia 2 28.90m
7. Łazienka 2 16.67m
8. Sypialnia 3
16.39m
9. Pralnia 15.09m
Rzuty
PARTER
Parter
1. Sień 5.67m
2. Garderoba 13.90m
3. Kuchnia 24.48m
4. Jadalnia 25.03m
5. Spiżarka 4.34m
6. WC 2.49m
7. Pokój dzienny 52.43m
8. Gabinet 23.46m
9. Serwerownia 6.83m
10. Kotłownia 10.89m
11. Garaż 41.75m
PIĘTRO
Piętro
1. Hall 31.74m
2. Łazienka 17.46m
3. Sypialnia 19.55m
4. Pokój dzienny 25.30m
5. Garderoba 16.38m
6. Sypialnia 2 28.90m
7. Łazienka 2 16.67m
8. Sypialnia 3
16.39m
9. Pralnia 15.09m
Dbamy o swoich Klientów, jak nikt inny!
Do każdego projektu zakupionego za pośrednictwem serwisu kreoDOM.pl otrzymasz książeczkę z rabatami na zakupy w firmach Komfort, Fachowiec, Domino Łazienki, Komandor, Witek Home i innych. Książeczka na pewno okaże się przydatna podczas urządzania Twojego wymarzonego domu!
Książeczka z rabatami do takich firm jak: Komfort, Domino Łazienki, Fachowiec, Vox, Komandor, Witek Home i innych
Gwarancja
bezpiecznych zakupów
Dodatkowe pakiety projektowe
- Kosztorys inwestorski cena ustalana indywidualnie
- Kolektory słoneczne cena ustalana indywidualnie
- Kominek z DGP cena ustalana indywidualnie
- Wentylacja mechaniczna z rekuperacją cena ustalana indywidualnie
- Pompa ciepła cena ustalana indywidualnie