Dane techniczne
- Powierzchnia użytkowa 152.95 m²
- Powierzchnia zabudowy 127.60 m²
- Kubatura 727.00 m³
- Kąt nachylenia dachu 22.00°
- Wysokość budynku 8.90 m
- Min. wymiary działki 22.35x19.36 m
- Garaż 21.27 m²
- Pracownia Architeka
Technologia budowy
ŚCIANY WEWNĘTRZNE bloczki gazobetonowe lub pustak ceramiczny / cegła dziurawka
ŚCIANY ZEWNĘTRZNE bloczki gazobetonowe lub pustak ceramiczny + ocieplenie styropian
STROP Teriva
POKRYCIE DACHU; dachówka ceramiczna lub blachodachówka
ELEWACJE tynk strukturalny plus okładzina drewniana
Opis
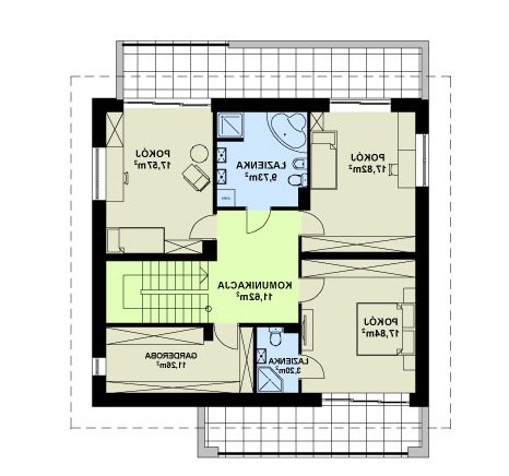
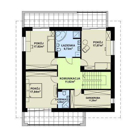
Przestronny dom dla wymagających użytkowników. Na parterze, oprócz salonu, toalety i pomieszczenia technicznego, znajduje się wydzielona kuchnia z dodatkowym wejściem z garażu. Jest to wygodne rozwiązanie, które pozwoli nam wnieść ciężkie zakupy z bagażnika samochodu prosto do kuchni. Piętro mieści trzy pokoje, garderobę oraz wygodną łazienkę. Mały spadek dachu sprawia, że na piętrze nie ma skosów- pomieszczenia są więc wyjątkowo ustawne
Dbamy o swoich Klientów, jak nikt inny!
Do każdego projektu zakupionego za pośrednictwem serwisu kreoDOM.pl otrzymasz książeczkę z rabatami na zakupy w firmach Komfort, Fachowiec, Domino Łazienki, Komandor, Witek Home i innych. Książeczka na pewno okaże się przydatna podczas urządzania Twojego wymarzonego domu!
Książeczka z rabatami do takich firm jak: Komfort, Domino Łazienki, Fachowiec, Vox, Komandor, Witek Home i innych
Gwarancja
bezpiecznych zakupów
Dodatkowe pakiety projektowe
- Kosztorys inwestorski bezpłatnie
- Dodatkowy egzemplarz projektu 250,00 zł