Technologia murowana, ściany zewnętrzne dwuwarstwowe, docieplenie grubości 20 cm
Strop gęstożebrowy
Dach o konstrukcji drewnianej pokryto dachówką płaską lub inną o podobnych parametrach
Więźba dachowa dostępna również w systemie prefabrykacji drewnianej
Elewacje: tynk cienkowarstwowy mineralny i okładzina drewniana
Stolarka okienna: drewniana, PCV lub aluminiowa
Rolety zewnętrzne w systemie CleverBox firmy BeClever
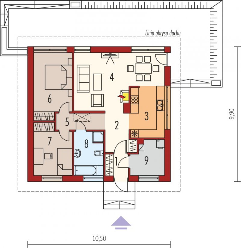
Elmo to dom zaprojektowany w duchu energooszczędnej prostoty – zwarta bryła eliminuje ryzyko występowania mostków termicznych, a prosty dwuspadowy dach jest tani w budowie i doskonale nadaje się do zamontowania na nim systemu solarnego. Na jednej kondygnacji udało się zaplanować funkcjonalne wnętrze, które maksymalnie wykorzystuje przestrzeń użytkową. Z zewnątrz dom czaruje swoim atrakcyjnym wyglądem – symetryczną strefą wejściową i smakowitą kompozycją elewacji utrzymaną w tonacji apetycznego cappuccino. Od strony ogrodowej zaplanowano duże przeszklenia, które zapraszają do wnętrz zieleń roślin i naturalne światło, otulające przestrzeń swoim przytulnym blaskiem. Atutem domu jest również komfortowy taras, na którym domownicy mogą witać dzień filiżanką pachnącej kawy, a wieczorem odpoczywać w towarzystwie balsamicznej ciszy ogrodu. Charakterystyka: Dom parterowy, niepodpiwniczony Przeznaczenie: Dom dla 2-3-osobowej rodziny Układ funkcjonalny: Strefa dzienna: salon z kominkiem, kuchnia oraz jadalnia Strefa nocna: dwie sypialnie oraz duża łazienka Dodatkowo: kotłownia Atuty projektu okiem architekta: - Zwarta bryła budynku sprzyjająca oszczędności na dociepleniu, energii na ogrzanie i utrzymanie w przyszłości - Znakomite parametry cieplne - Zblokowane piony instalacyjne to oszczędność na etapie budowy i eksploatacji instalacji - Funkcjonalne i ergonomiczne wnętrze - Salon z kominkiem oferujący wiele możliwości aranżacji - Duże przeszklenia od strony ogrodu - Subtelna kompozycja elewacji Bryla sprzyja wykonaniu energooszczędnych rozwiązań instalacyjnych: - wentylacji mechanicznej z odzyskiem ciepła - systemu solarnego i fotowoltaicznego - pompy ciepła Istnieje możliwość: - zbliźniaczenia lub wykonania domu dwurodzinnego