Dane techniczne
- Powierzchnia użytkowa 75.99 m²
- Powierzchnia zabudowy 114.91 m²
- Kubatura 267.26 m³
- Kąt nachylenia dachu 30.00°
- Powierzchnia dachu 169.06 m²
- Wysokość budynku 6.84 m
- Min. wymiary działki 17.60x24.00 m
- Pracownia Archipelag
Technologia budowy
Technologia i konstrukcja
- Technologia murowana, ściany zewnętrzne dwuwarstwowe, docieplenie grubości 20 cm
- Strop gęstożebrowy
- Dach o konstrukcji drewnianej pokryto dachówką cementową IBF
- Więźba dachowa dostępna również w systemie prefabrykacji drewnianej
Opis
Dom Elmo IV ENERGO prezentuje nowoczesne podejście do klasyki. Oszczędna forma budynku została wzbogacona atrakcyjnym zadaszeniem nad wejściem. Przytulny urok całości akcentuje subtelna elewacja. We wnętrzu króluje wygoda i sprawdzone rozwiązania funkcjonalne. Serce domu tworzy komfortowy salon, który za pomocą tarasowego przeszklenia, subtelnie poszerza swą przestrzeń o strefę ogrodu.
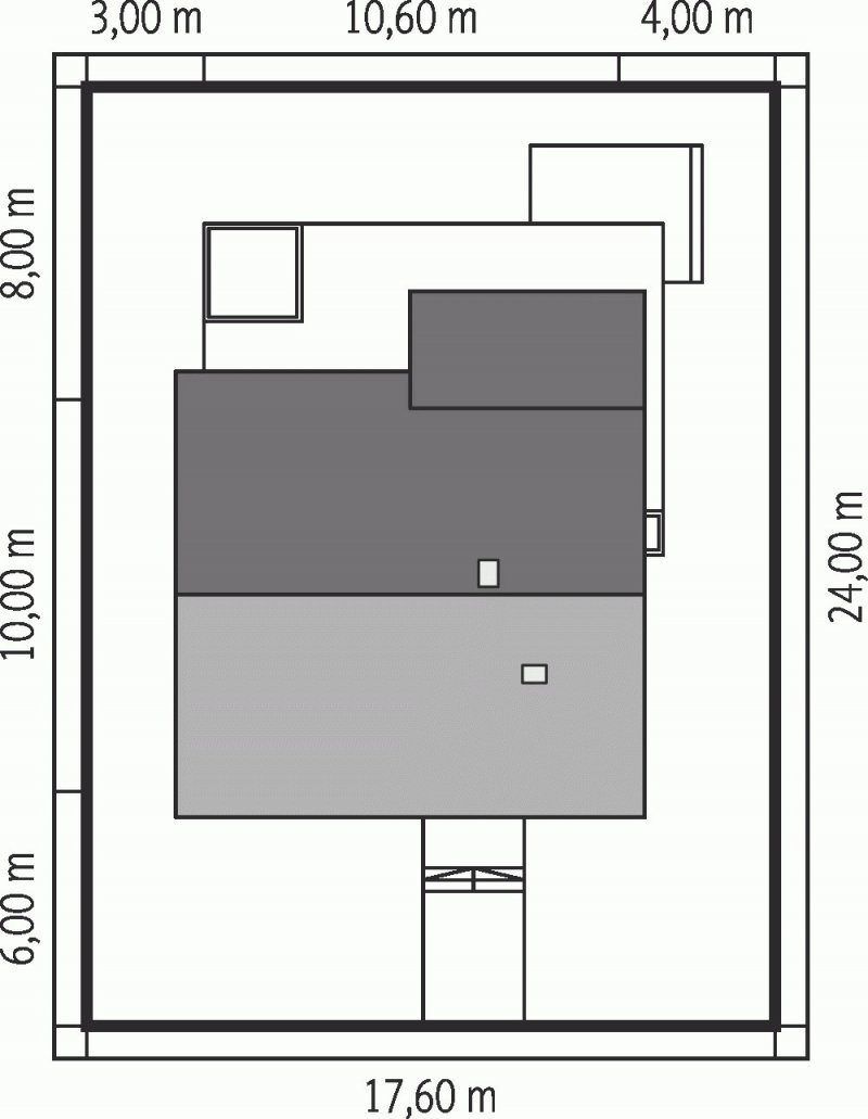
Rzuty
PARTER
- Wiatrołap 2.59 m2
- Hol 9.74 m2
- Kuchnia 9.63 m2
- Pokój dzienny 23.54 m2
- Sypialnia 13.37 m2
- Sypialnia 10.23 m2
- Łazienka 6.89 m2
- Kotłownia 5.83 m2
Rzuty
PARTER
- Wiatrołap 2.59 m2
- Hol 9.74 m2
- Kuchnia 9.63 m2
- Pokój dzienny 23.54 m2
- Sypialnia 13.37 m2
- Sypialnia 10.23 m2
- Łazienka 6.89 m2
- Kotłownia 5.83 m2
Dbamy o swoich Klientów, jak nikt inny!
Do każdego projektu zakupionego za pośrednictwem serwisu kreoDOM.pl otrzymasz książeczkę z rabatami na zakupy w firmach Komfort, Fachowiec, Domino Łazienki, Komandor, Witek Home i innych. Książeczka na pewno okaże się przydatna podczas urządzania Twojego wymarzonego domu!
Książeczka z rabatami do takich firm jak: Komfort, Domino Łazienki, Fachowiec, Vox, Komandor, Witek Home i innych
Gwarancja
bezpiecznych zakupów
Dodatkowe pakiety projektowe
- Kosztorys inwestorski cena ustalana indywidualnie
- Wentylacja mechaniczna z rekuperacją 700,00 zł
- Wentylacja mechaniczna + GPWC 700,00 zł
- Kolektory Słoneczne 400,00 zł
- Panele Fotowoltaiczne 400,00 zł
- Pompa Ciepła 500,00 zł
- Kominek z DGP 400,00 zł
- Biologiczna oczyszczalnia ścieków 150,00 zł
- Centralny Odkurzacz 300,00 zł
- Szambo przydomowe 200,00 zł
- Dodatkowy egzemplarz projektu 150,00 zł