Dane techniczne
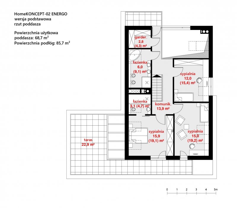
- Powierzchnia użytkowa 160.88 m²
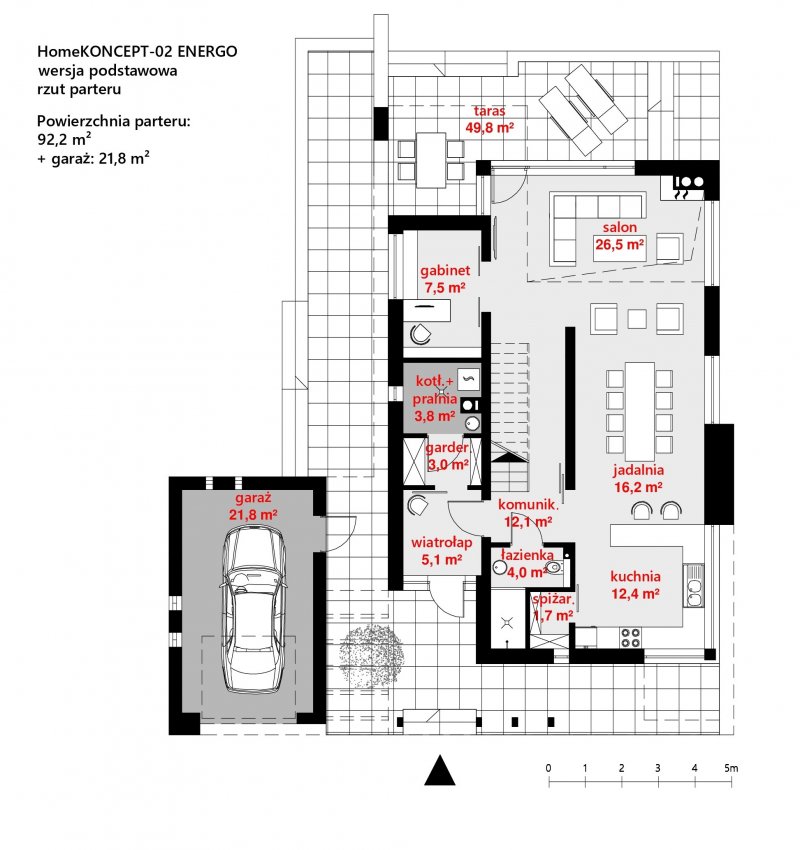
- Powierzchnia zabudowy 149.36 m²
- Kubatura 978.20 m³
- Kąt nachylenia dachu 35.00°
- Wysokość budynku 8.20 m
- Min. wymiary działki 23.75x22.40 m
- Garaż 21.78 m²
- Pracownia HomeKONCEPT
Technologia budowy
ŚCIANY dwuwarstwowe - pustak ceramiczny 25 cm + styropian
STROPY żelbetowe wylewane
SCHODY jednobiegowe żelbetowe
DACH blacha tytanowo-cynkowa
| Stan surowy otwarty |
201 209 zł |
| Stan surowy zamknięty |
246 139 zł |
| Stan deweloperski |
424 337 zł |
| Stan deweloperski metodą gospodarczą |
297 036 zł |
Opis
Atrakcyjna bryła projektu HomeKoncept 2 z pewnością zainteresuje miłośników antresoli i niebanalnych rozwiązań. Jednostanowiskowy garaż jest połączony z domem w dość nietypowy sposób, gdyż jedyną spoiną jest balkon. Przestrzeń między domem a balkonem jest otwarta - co daje możliwość ciekawego zaaranżowania zieleni w tym miejscu. Spora antresola i duże przeszklenie optycznie powiększają przestrzeń salonu, który w ten sposób łączy się z ogrodem. Wszystko to w wersji energooszczędnej - z lepszą izolacją ścian, podłóg i dachu, wentylacją mechaniczną z odzyskiem ciepła i energooszczędną stolarką okienną i drzwiową.
Dbamy o swoich Klientów, jak nikt inny!
Do każdego projektu zakupionego za pośrednictwem serwisu kreoDOM.pl otrzymasz książeczkę z rabatami na zakupy w firmach Komfort, Fachowiec, Domino Łazienki, Komandor, Witek Home i innych. Książeczka na pewno okaże się przydatna podczas urządzania Twojego wymarzonego domu!
Książeczka z rabatami do takich firm jak: Komfort, Domino Łazienki, Fachowiec, Vox, Komandor, Witek Home i innych
Gwarancja
bezpiecznych zakupów
Dodatkowe pakiety projektowe
- Szczegółowy kosztorys inwestorski 350,00
- Wentylacja mechaniczna z rekuperacją bezpłatnie
- Pompa ciepła z ogrzewaniem podłogowym 800,00 zł
- Ogrzewanie podłogowe 400,00 zł
- Kolektory Słoneczne 0
- Kominek z płaszczem wodnym 300,00 zł
- Szambo 250,00 zł
- Dodatkowy egzemplarz projektu 350,00 zł
- Kotłownia na paliwo stałe 350,00 zł
- Wentylacja grawitacyjna 350,00 zł