Dane techniczne
- Powierzchnia użytkowa 159.77 m²
- Powierzchnia zabudowy 146.13 m²
- Kubatura 960.20 m³
- Kąt nachylenia dachu 35.00°
- Wysokość budynku 8.20 m
- Min. wymiary działki 23.70x22.35 m
- Garaż 21.78 m²
- Pracownia HomeKONCEPT
Technologia budowy
|
ŚCIANY
|
dwuwarstwowe - pustak ceramiczny 25 cm + styropian
|
|
STROPY
|
żelbetowe wylewane
|
|
SCHODY
|
jednobiegowe żelbetowe
|
|
DACH
|
dachówka ceramiczna
|
| Stan surowy otwarty |
199 388 zł |
| Stan surowy zamknięty |
242 262 zł |
| Stan deweloperski |
387 879 zł |
| Stan deweloperski metodą gospodarczą |
271 515 zł |
Opis
Atrakcyjna bryła zainteresuje miłośników antresoli i niebanalnych rozwiązań. Jednostanowiskowy garaż połączony jest z domem dość nietypowo, gdyż jedyną spoiną jest balkon, a przestrzeń między nimi pozostała otwarta. Spora antresola i wysokie przeszklenie optycznie powiększają przestrzeń salonu, który w ten sposób łączy się z ogrodem.
Otwarta kuchnia z jadalnią potęguje efekt przestronności. Gabinet jest zaprojektowany w tylnej części domu,
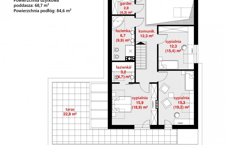
co sprzyja pracy. Poddasze mieści trzy sypialnie, dwie łazienki oraz garderobę.
Dbamy o swoich Klientów, jak nikt inny!
Do każdego projektu zakupionego za pośrednictwem serwisu kreoDOM.pl otrzymasz książeczkę z rabatami na zakupy w firmach Komfort, Fachowiec, Domino Łazienki, Komandor, Witek Home i innych. Książeczka na pewno okaże się przydatna podczas urządzania Twojego wymarzonego domu!
Książeczka z rabatami do takich firm jak: Komfort, Domino Łazienki, Fachowiec, Vox, Komandor, Witek Home i innych
Gwarancja
bezpiecznych zakupów
Dodatkowe pakiety projektowe
- Szczegółowy kosztorys inwestorski 350,00
- Wentylacja mechaniczna z rekuperacją 450,00 zł
- Pompa ciepła z ogrzewaniem podłogowym 800,00 zł
- Ogrzewanie podłogowe 400,00 zł
- Kolektory Słoneczne 0
- Kominek z płaszczem wodnym 300,00 zł
- Szambo 250,00 zł
- Dodatkowy egzemplarz projektu 350,00 zł
- Kotłownia na paliwo stałe 350,00 zł
- Wentylacja grawitacyjna 350,00 zł