Dane techniczne
- Powierzchnia użytkowa 144.93 m²
- Powierzchnia zabudowy 140.46 m²
- Kubatura 579.21 m³
- Kąt nachylenia dachu 40.00°
- Powierzchnia dachu 200.71 m²
- Wysokość budynku 8.58 m
- Min. wymiary działki 24.40x23.40 m
- Garaż 29.20 m²
- Pracownia Archipelag
Technologia budowy
- Technologia murowana, ściany zewnętrzne dwuwarstwowe
- Bardzo dobra izolacja przegród zewnętrznych i przegród wewnętrznych:
- ściany zewnętrzne – izolacja – 20 cm warstwa wełny mineralnej,
- dach i strop nad poddaszem – izolacja – 30 cm warstwa wełny mineralnej
- podłoga na gruncie – izolacja – 15 cm warstwa styropianu
- Strop gęstożebrowy
- Dach o konstrukcji drewnianej pokryto dachówką płaską lub inną o podobnych parametrach
Wykończenie:
- Elewacje: tynk cienkowarstwowy mineralny w kolorze TO-OR001 z palety firmy Termo Organika i okładzina drewniana
- Stolarka okienna: drewniana, PCV lub aluminiowa
Opis
Dom Benjamin II G2 to udane połączenie klasycznej formy i współczesnych trendów w architekturze. W prostą bryłę budynku zgrabnie wkomponowano duży, dwustanowiskowy garaż. Całość ozdobiono efektowną kompozycją elewacji, z drewnem i chłodną urodą kamienia w rolach głównych. We wnętrzu króluje maksymalna wygoda użytkowania, perfekcyjnie rozplanowana w przestrzeni parteru i poddasza. W domu zaprojektowanym w duchu nowoczesności nie mogło zabraknąć dużych przeszkleń, które wykorzystują zyski ciepła od słońca i zapraszają do środka naturalne światło oraz dobrą, zieloną energię ogrodu.
Rzuty
PARTER
- Wiatrołap 2.57 m2
- Hol 16.50 m2
- Kuchnia 11.23 m2
- Spiżarnia 1.67 m2
- Pokój dzienny jadalnia 30.38 m2
- Korytarz 3.62 m2
- Łazienka 2.95 m2
- Kotłownia 12.18 m2
- Garaż 29.20 m2
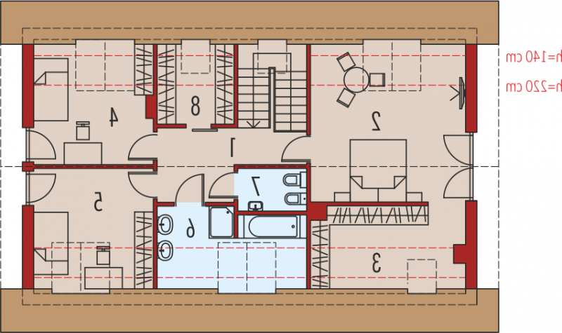
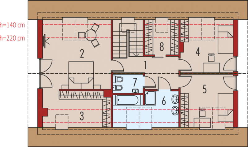
PODDASZE
- Korytarz 8.28 m2
- Sypialnia 21.08 m2
- Garderoba 8.77 m2
- Sypialnia 11.52 m2
- Sypialnia 11.34 m2
- Pokój kąpielowy 7.88 m2
- Toaleta 2.94 m2
- Garderoba 4.20 m2
Rzuty
PARTER
- Wiatrołap 2.57 m2
- Hol 16.50 m2
- Kuchnia 11.23 m2
- Spiżarnia 1.67 m2
- Pokój dzienny jadalnia 30.38 m2
- Korytarz 3.62 m2
- Łazienka 2.95 m2
- Kotłownia 12.18 m2
- Garaż 29.20 m2
PODDASZE
- Korytarz 8.28 m2
- Sypialnia 21.08 m2
- Garderoba 8.77 m2
- Sypialnia 11.52 m2
- Sypialnia 11.34 m2
- Pokój kąpielowy 7.88 m2
- Toaleta 2.94 m2
- Garderoba 4.20 m2
Dbamy o swoich Klientów, jak nikt inny!
Do każdego projektu zakupionego za pośrednictwem serwisu kreoDOM.pl otrzymasz książeczkę z rabatami na zakupy w firmach Komfort, Fachowiec, Domino Łazienki, Komandor, Witek Home i innych. Książeczka na pewno okaże się przydatna podczas urządzania Twojego wymarzonego domu!
Książeczka z rabatami do takich firm jak: Komfort, Domino Łazienki, Fachowiec, Vox, Komandor, Witek Home i innych
Gwarancja
bezpiecznych zakupów
Dodatkowe pakiety projektowe
- Kosztorys inwestorski cena ustalana indywidualnie
- Wentylacja mechaniczna z rekuperacją 700,00 zł
- Wentylacja mechaniczna + GPWC 700,00 zł
- Kolektory Słoneczne 400,00 zł
- Panele Fotowoltaiczne 400,00 zł
- Pompa Ciepła 500,00 zł
- Kominek z DGP 400,00 zł
- Biologiczna oczyszczalnia ścieków 150,00 zł
- Centralny Odkurzacz 300,00 zł
- Szambo przydomowe 200,00 zł
- Dodatkowy egzemplarz projektu 150,00 zł